

作品包括:
Word版设计说明书1份
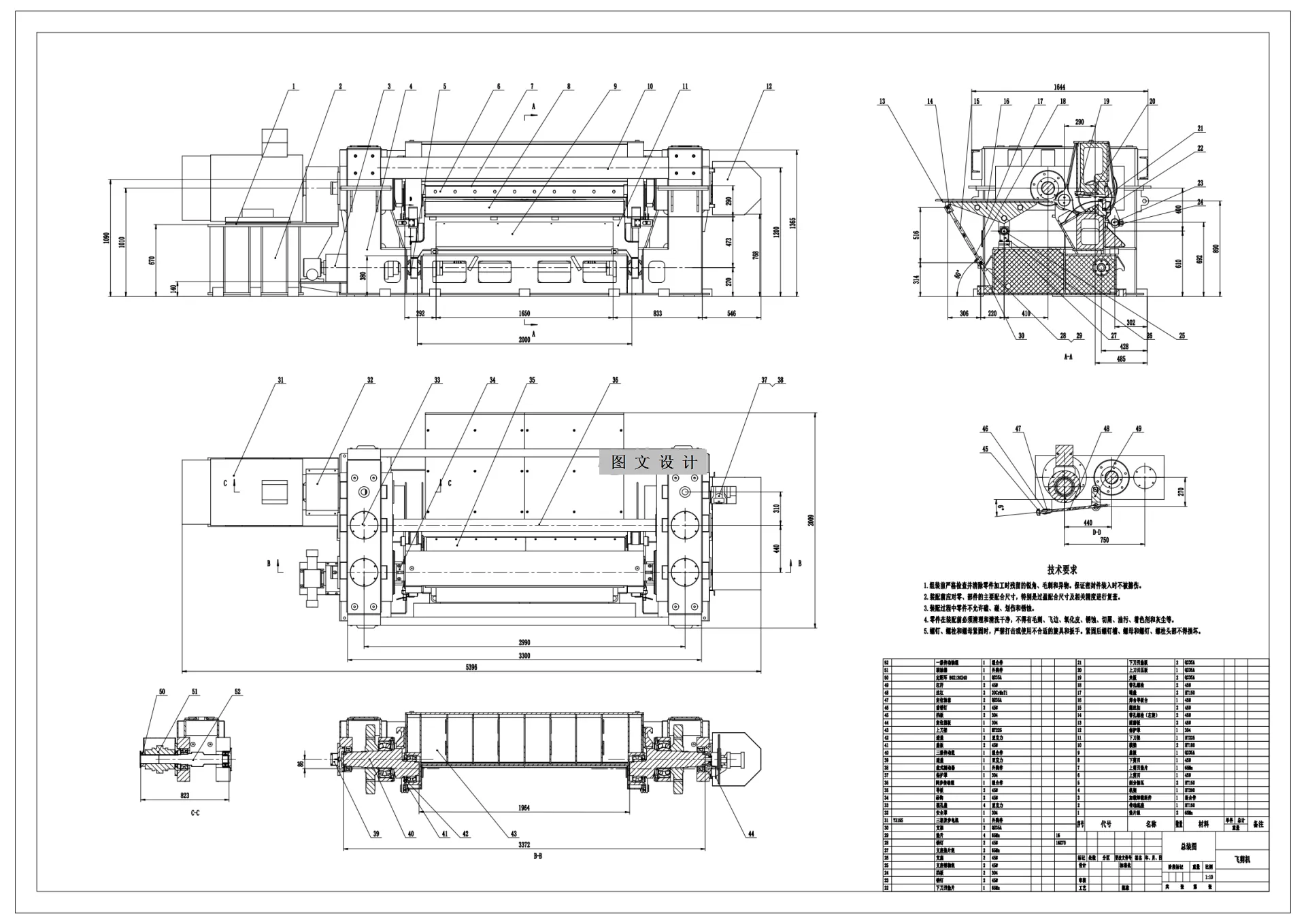
CAD版本图纸,共14张
SW三维图一套
摘要
随着现代化连轧技术的不断发展,热连轧生产中飞剪机起着越来越重要的作用,对飞剪功能精度的要求也越来越高,这关系到产品的质量、轧制节奏及生产成本。因此,一种结构简单、重量轻、成本低、功能齐全、使用简单可靠的飞剪机对整条轧线来说都是非常重要的。 在进行结构设计之前,首先了解飞剪技术、飞剪机的基本结构组成和应用情况,分析飞剪机的结构特点,提出了具体的设计要求,掌握剪切过程中的具体工作形式,并巩固《机械原理》《机械设计》的基础知识,掌握齿轮传动的设计计算、强度校核等,掌握Solidworks软件的建模方法等。 拟定飞剪机的结构方案,完成飞剪机的机械结构设计计算及校核,包括驱动系统、传动系统、剪切装置、机架等及相关必要附件,同时对现有的机械结构提出了新的改善,将目前的新技术应用到本课题中,使对飞剪机更适合现在的工业作业环境。然后通过软件Solidworks完成三维模型的建立,在参数优化的基础上对其绘制二维Auto CAD图纸,本文的研究成果对于飞剪机的设计具有一定的参考价值。
温馨提示:
1、题目前面的备注【字母数字编号】为本站整理分类的编号,与课题内容无关,请选题时忽视;
2、若题目上备注三维,则表示文件里包含三维源文件,由于三维组成零件数量较多,为保证预览截图的简洁性,本站将三维文件夹进行了打包。三维及CAD预览截图,均为本站电脑打开软件进行截图的,保证能够打开,下载原件超高清,下载后解压即可;
3、本站所有资源如无特殊说明,都需要本地电脑安装Office2007。图纸软件为AutoCAD,PROE,UG,SolidWorks,CATIA等;
4、本站所有图文资料仅供用户学习参考,不作为任何商用或其他用途;
5、本站不保证下载资源的准确性、安全性和完整性, 不包修改,不支持退换,同时也不承担用户因使用这些下载资源对自己和他人造成任何形式的伤害或损失;
6、 下载文件中如有侵权或不适当内容,请与我们联系,我们立即纠正。