

作品包括:
Word版设计说明书1份,共53页,约20000字
CAD版本图纸,共4张

摘要
本课题旨在设计一型用于人腿康复训练的机械腿以减轻腿部疾病等病人在腿部康复治疗时的痛苦,提高病人的康复效率,并且能在此基础上开发出更多实用功能。通过此课题的研究,我们可以看到制造行业的发展对人类劳动效率的提高有十分显著的作用。设计一个装置从方案确定到结构设计再到最终成形必须要考虑各个方面的因素,最终才能形成一个符合要求的设计。
本课题主要完成的内容有:了解国内外人腿康复训练的机械腿的发展现状,查阅有关文献资料,从人体解剖学角度介绍人腿骨架和关节的组成及其运动特点,然后完成初步方案设计并探讨方案的可行性,在此基础上完成总体方案的改进工作,以此确定所设计的机械腿总体方案,再依据所选方案进行各个零件的设计。本课题主要完成的是讨论分析比较各关节运动的机电驱动和控制方案,并根据所选方案进行相关的设计计算,例如步进电机和滚珠丝杆驱动方案,或者液压比例控制阀和液压油缸驱动方案;再进行关节驱动机电(液)系统的设计计算,根据载荷和运动要求等设计参数选型步进电机(或者液压比例阀),计算选型滚珠丝杆(或者液压油缸),轴承、销轴等;完成机械腿结构设计并且完成二维图纸的绘制。
关键词:机械腿;机电驱动;控制方案;方案设计;二维图
目 录
引言 1
第 1 章 绪论 2
5.1 课题背景及研究意义 2
5.2 课题研究现状 2
5.3 课题发展趋势 3
5.4 人腿骨架和关节的组成及其运动特点 4
5.4.1 人腿骨架的组成 5
5.4.2 髋关节的组成及其运动特点 5
5.4.3 膝关节的组成及其运动特点 5
5.4.4 踝关节的组成及其运动特点 5
第 2 章 人腿康复训练行走助力装置功能分析及方案设计 5
• 人腿康复训练行走助力装置功能分析 5
• 人腿康复训练行走助力装置方案设计 5
• 总体方案设计 5
• 背部机构设计 6
• 大腿机构设计 7
• 小腿机构设计 7
• 足部机构设计 8
• 人腿康复训练行走助力装置各机构成本控制方案 9
第 3 章 人腿康复训练行走助力装置结构设计 10
4.2 人腿康复训练行走助力装置结构设计 10
4.2.1 行走助力装置大腿机构设计 10
4.2.2 行走助力装置小腿机构设计 12
4.2.3 行走助力装置足部机构设计 15
4.3 行走助力装置驱动装置选择 16
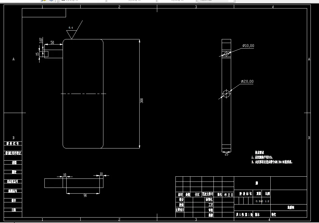
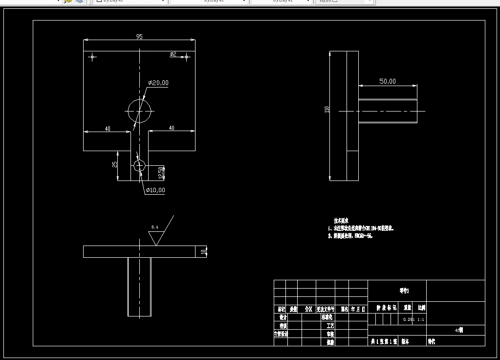
第 4 章 小腿机构固定端的工艺规程设计及其夹具设计 18
• 小腿机构固定端的工艺分析 18
• 小腿机构固定端工艺规程设计 18
• 确定毛坯的成型方式 18
• 定位基准的选择 19
• 小腿机构固定端加工工艺路线设计 19
• 小腿机构固定端专用夹具设计 21
• 加工工序的选择 21
• 定位方案的确定 21
• 夹紧方式的确定 22
• 导向装置的设计 23
• 夹具体的设计 24
• 夹具装配 24
第 5 章 小腿机构移动端的合理分析 29
3.1 小腿机构移动端三维模型 29
3.2 小腿机构移动端受力计算 29
3.2.1 确定小腿机构移动端上端总重力 29
3.2.2 确定小腿机构移动端内侧所受摩擦力 30
3.3 小腿机构移动端 ANSYS 有限元分析 30
结论与展望 35
致谢 36
参考文献 37
附录 A 附加图(另附) 38
附录 B 外文文献及其译文(见开题报告) 38
附录 C 主要参考文献题录及摘要 39
温馨提示:
1、题目前面的备注【字母数字编号】为本站整理分类的编号,与课题内容无关,请选题时忽视;
2、若题目上备注三维,则表示文件里包含三维源文件,由于三维组成零件数量较多,为保证预览截图的简洁性,本站将三维文件夹进行了打包。三维及CAD预览截图,均为本站电脑打开软件进行截图的,保证能够打开,下载原件超高清,下载后解压即可;
3、本站所有资源如无特殊说明,都需要本地电脑安装Office2007。图纸软件为AutoCAD,PROE,UG,SolidWorks,CATIA等;
4、本站所有图文资料仅供用户学习参考,不作为任何商用或其他用途;
5、本站不保证下载资源的准确性、安全性和完整性, 不包修改,不支持退换,同时也不承担用户因使用这些下载资源对自己和他人造成任何形式的伤害或损失;
6、 下载文件中如有侵权或不适当内容,请与我们联系,我们立即纠正。