欢迎来到龙图网在线图文分享平台-CAD图纸,设计说明书,工业设计3D模型,三维软件下载! 客服QQ:2363701252
热搜: 工艺夹具 模具设计 数控编程 土木工程 3D模型

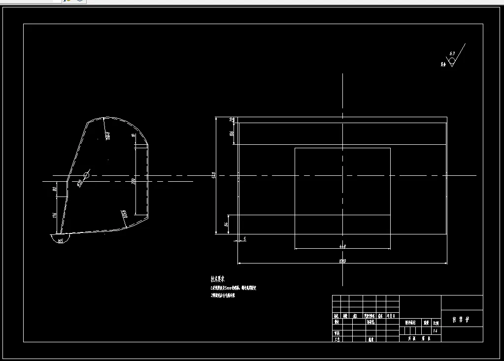
Z2665-新型旋切式除雪车设计 下载积分:50 资料编号: Z2665

1.打开支付宝或者微信扫描二维码。
2.填写金额:50 
3.添加备注,填写资料编号:
资料编号: Z2665
4.支付成功后,请发资料编号到邮箱:jxsj168@qq.com
会有专人在15分钟内把资料发到您邮箱
备注:如果付款忘记填写资料编号,则发邮件时附带您的交易明细截图即可。
请耐心等待,如超过30分钟还没收到,请联系客服QQ:2363701252

作品描述

作品包括:

Word版设计说明书1份,共27页,约6700字

CAD版本图纸,共10张

Z2665-新型旋切式除雪车设计

摘要

本文在分析了目前国内外的主要除雪方法的基础上,提出一种适合中国国情的小型机械旋切式扫雪机的设计方案。本设计由汽油机提供动力。经输出轴输出动力,通过链传动传递动力,带动其他工作。该扫雪机的工程是利用搅龙旋转将雪集中并向后推送,通过搅龙的向后推力及螺旋桨产生的吸力使其到达螺旋桨。由于螺旋桨高速旋转产生巨大的作用力,雪被高速推向弯管,再通过与弯管壁撞击折射出去。从而达到清除积雪的目的和最佳效果。

关键词:扫雪机;搅龙;传动轴 

 目    录 

摘要 …………………………………………………………………………………1

关键词 ………………………………………………………………………………1

1  引言………………………………………………………………………………2

    1.1  研究的目的和意义………………………………………………………3

    1.2  国内外研究现状…………………………………………………………3

2  总体方案设计……………………………………………………………………4

    2.1  设计任务与要求…………………………………………………………4

    2.2  系统工作原理……………………………………………………………4

    2.3  主要技术参数……………………………………………………………5

3  具体方案设计及加工……………………………………………………………5

    3.1  动力参数…………………………………………………………………5

    3.2  链与链轮…………………………………………………………………5

        3.2.1  确定链条节数……………………………………………………6

        3.2.2  确定节距…………………………………………………………6

        3.2.3  确定中心距………………………………………………………6

        3.2.4  验算链速…………………………………………………………6

        3.2.5  压轴力……………………………………………………………6

4  传动轴的设计与校核……………………………………………………………7

    4.1  轴的设计计算……………………………………………………………7

    4.2  确定各轴的直径和长度…………………………………………………7

    4.3  轴的校核…………………………………………………………………8

5  涡轮与蜗杆………………………………………………………………………8

5.1  按接触强度计算…………………………………………………………8

    5.1.1  确定蜗杆头数、蜗杆齿数………………………………………8

    5.1.2  确定涡轮转矩……………………………………………………9

        5.1.3  确定条件…………………………………………………………9

        5.1.4  初定中心距、模数、倒程角……………………………………9

        5.1.5  计算传动效率……………………………………………………9

    5.2  验算齿面接触强度………………………………………………………9

    5.3  计算传动的主要尺寸……………………………………………………10

    5.4  弯曲强度验算……………………………………………………………10

6  搅龙轴设计与校核………………………………………………………………11

    6.1  轴的设计计算……………………………………………………………11

    6.2  确定各轴段的直径和长度………………………………………………12

    6.3  轴的校核…………………………………………………………………12

7  键的选择与校核…………………………………………………………………14

8  螺旋叶片的设计…………………………………………………………………14

9  结论  ……………………………………………………………………………15

9.1  设计完成情况……………………………………………………………15

9.2  结论………………………………………………………………………16

参考文献 ……………………………………………………………………………16

致谢 …………………………………………………………………………………17

温馨提示:

1、题目前面的备注【字母数字编号】为本站整理分类的编号,与课题内容无关,请选题时忽视;

2、若题目上备注三维,则表示文件里包含三维源文件,由于三维组成零件数量较多,为保证预览截图的简洁性,本站将三维文件夹进行了打包。三维及CAD预览截图,均为本站电脑打开软件进行截图的,保证能够打开,下载原件超高清,下载后解压即可;

3、本站所有资源如无特殊说明,都需要本地电脑安装Office2007。图纸软件为AutoCAD,PROE,UG,SolidWorks,CATIA等;

4、本站所有图文资料仅供用户学习参考,不作为任何商用或其他用途;
5、本站不保证下载资源的准确性、安全性和完整性, 不包修改,不支持退换,同时也不承担用户因使用这些下载资源对自己和他人造成任何形式的伤害或损失;

6、 下载文件中如有侵权或不适当内容,请与我们联系,我们立即纠正。


线

Z2665-新型旋切式除雪车设计 下载积分:50 资料编号:Z2665

作品描述

作品包括:

Word版设计说明书1份,共27页,约6700字

CAD版本图纸,共10张

Z2665-新型旋切式除雪车设计

摘要

本文在分析了目前国内外的主要除雪方法的基础上,提出一种适合中国国情的小型机械旋切式扫雪机的设计方案。本设计由汽油机提供动力。经输出轴输出动力,通过链传动传递动力,带动其他工作。该扫雪机的工程是利用搅龙旋转将雪集中并向后推送,通过搅龙的向后推力及螺旋桨产生的吸力使其到达螺旋桨。由于螺旋桨高速旋转产生巨大的作用力,雪被高速推向弯管,再通过与弯管壁撞击折射出去。从而达到清除积雪的目的和最佳效果。

关键词:扫雪机;搅龙;传动轴 

 目    录 

摘要 …………………………………………………………………………………1

关键词 ………………………………………………………………………………1

1  引言………………………………………………………………………………2

    1.1  研究的目的和意义………………………………………………………3

    1.2  国内外研究现状…………………………………………………………3

2  总体方案设计……………………………………………………………………4

    2.1  设计任务与要求…………………………………………………………4

    2.2  系统工作原理……………………………………………………………4

    2.3  主要技术参数……………………………………………………………5

3  具体方案设计及加工……………………………………………………………5

    3.1  动力参数…………………………………………………………………5

    3.2  链与链轮…………………………………………………………………5

        3.2.1  确定链条节数……………………………………………………6

        3.2.2  确定节距…………………………………………………………6

        3.2.3  确定中心距………………………………………………………6

        3.2.4  验算链速…………………………………………………………6

        3.2.5  压轴力……………………………………………………………6

4  传动轴的设计与校核……………………………………………………………7

    4.1  轴的设计计算……………………………………………………………7

    4.2  确定各轴的直径和长度…………………………………………………7

    4.3  轴的校核…………………………………………………………………8

5  涡轮与蜗杆………………………………………………………………………8

5.1  按接触强度计算…………………………………………………………8

    5.1.1  确定蜗杆头数、蜗杆齿数………………………………………8

    5.1.2  确定涡轮转矩……………………………………………………9

        5.1.3  确定条件…………………………………………………………9

        5.1.4  初定中心距、模数、倒程角……………………………………9

        5.1.5  计算传动效率……………………………………………………9

    5.2  验算齿面接触强度………………………………………………………9

    5.3  计算传动的主要尺寸……………………………………………………10

    5.4  弯曲强度验算……………………………………………………………10

6  搅龙轴设计与校核………………………………………………………………11

    6.1  轴的设计计算……………………………………………………………11

    6.2  确定各轴段的直径和长度………………………………………………12

    6.3  轴的校核…………………………………………………………………12

7  键的选择与校核…………………………………………………………………14

8  螺旋叶片的设计…………………………………………………………………14

9  结论  ……………………………………………………………………………15

9.1  设计完成情况……………………………………………………………15

9.2  结论………………………………………………………………………16

参考文献 ……………………………………………………………………………16

致谢 …………………………………………………………………………………17

温馨提示:

1、题目前面的备注【字母数字编号】为本站整理分类的编号,与课题内容无关,请选题时忽视;

2、若题目上备注三维,则表示文件里包含三维源文件,由于三维组成零件数量较多,为保证预览截图的简洁性,本站将三维文件夹进行了打包。三维及CAD预览截图,均为本站电脑打开软件进行截图的,保证能够打开,下载原件超高清,下载后解压即可;

3、本站所有资源如无特殊说明,都需要本地电脑安装Office2007。图纸软件为AutoCAD,PROE,UG,SolidWorks,CATIA等;

4、本站所有图文资料仅供用户学习参考,不作为任何商用或其他用途;
5、本站不保证下载资源的准确性、安全性和完整性, 不包修改,不支持退换,同时也不承担用户因使用这些下载资源对自己和他人造成任何形式的伤害或损失;

6、 下载文件中如有侵权或不适当内容,请与我们联系,我们立即纠正。

关于我们 网站申明 友情链接 联系我们

扫一扫,联系微信客服


Copyright @ 龙图网版权所有  网站客服QQ:2363701252  微信客服:a58cad

皖ICP备2021006205号-2