

作品包括:
Word版说明书1份,共40页,约12000字
外文翻译一份
CAD版本图纸,共36张
Proe三维图一份
摘要
我国秸秆、饲草等农业生物质资源丰富,但其收集、储运环节成为制约其产业化利用的主要因素。研究开发秸秆、饲草压捆设备是实现农业生物质产业化利用的前提之一。论文通过分析国内外秸秆、饲草压缩理论及压捆机的研究进展,根据我国现阶段存在着压缩理论研究不完善,压捆机设计依据较少等问题,进行了压捆机主要结构部件压缩活塞机构的设计、分析。
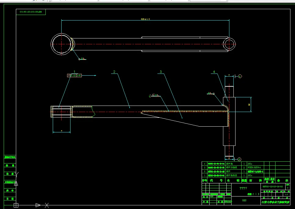
论文分析了秸秆、饲草物料的压缩理论,提出了在压捆机设计中满足结构需要的基础上主要设计指标方捆的截面尺寸为300mmX400mm,压缩机构需要对此截面草捆提供至少0.5MPa的压缩力,在设计中近似转换为曲柄连杆需要对活塞水平方向提供最大推力不小于60KN。通过借鉴国外压捆机经验,对压捆机的主要结构部件压缩活塞进行了设计。在己知活塞行程S=750mm、偏心距e=25mm、极位夹角 = 的条件下,计算并设定了适于方捆压捆机的压缩活塞结构参数,曲柄长r=375mm,连杆长L=820mm。并在pro/e里面进行了压缩机构的实体建模并对活塞体的干涉进行了分析。
关键词:秸秆、压捆机、压缩理论、压缩活塞、曲柄连杆、pro/e
目录
摘要 1
序言 3
第一章 概论 5
1.1本研究的目的与意义 5
1.1.1 焚烧秸秆的危害 5
1.1.2 秸秆的再利用 6
1.2压捆机国内外发展概况 7
第二章 压缩成型装置结构设计 16
2.1 压缩理论 16
2.2 压缩成型装置运动方案设计 17
2.3 压缩成型装置运动方案选择 20
2.4 压缩成型装置结构设计要求 20
2.5 压缩成型装置结构设计 21
第三章 压缩成型装置参数计算及校核 24
3.1 压缩成型装置参数计算 24
3.2 压缩成形装置机构最小传动角验证 27
3.3 压缩成型装置许用应力校核 28
第四章 压缩成型装置三维实体化建模 31
第五章 总结与展望 38
致谢 39
参考文献: 40
温馨提示:
1、题目前面的备注【字母数字编号】为本站整理分类的编号,与课题内容无关,请选题时忽视;
2、若题目上备注三维,则表示文件里包含三维源文件,由于三维组成零件数量较多,为保证预览截图的简洁性,本站将三维文件夹进行了打包。三维及CAD预览截图,均为本站电脑打开软件进行截图的,保证能够打开,下载原件超高清,下载后解压即可;
3、本站所有资源如无特殊说明,都需要本地电脑安装Office2007。图纸软件为AutoCAD,PROE,UG,SolidWorks,CATIA等;
4、本站所有图文资料仅供用户学习参考,不作为任何商用或其他用途;
5、本站不保证下载资源的准确性、安全性和完整性, 不包修改,不支持退换,同时也不承担用户因使用这些下载资源对自己和他人造成任何形式的伤害或损失;
6、 下载文件中如有侵权或不适当内容,请与我们联系,我们立即纠正。