

作品包括:
Word版说明书1份,共32页,约13000字
开题报告一份
外文翻译一份
CAD版本图纸,共4张
灯壳冲压下料机械手的液压系统设计
摘要
机械工业是国民的装备部,是为国民经济提供装备和为人民生活提供耐用消费品的产业。机械工业的规模和技术水平是衡量国家经济实力和科学技术水平的重要标志。因此,世界各国都把发展机械工业作为发展本国经济的战略重点之一。生产水平及科学技术的不断进步与发展带动了整个机械工业的快速发展。现代工业中,生产过程的机械化,自动化已成为突出的主题。然而在机械工业中,加工、装配等生产是不连续的。单靠人力将这些不连续的生产工序衔接起来,不仅费时而且效率不高。同时人的劳动强度非常大,有时还会出现失误及伤害。显然,这严重影响制约了整个生产过程的效率和自动化程度。机械手的应用很好的解决了这一情况,它不存在重复的偶然失误,也能有效的避免了人身事故。机器人并不是在简单意义上代替人工的劳动,而是综合了人的特长和机器特长的一种拟人的机械装置,既有人对环境状态的快速反应和分析判断能力,又有机器可长时间持续工作、精确度高、抗恶劣环境的能力,从某种意义上说它也是机器的进化过程产物,它是工业以及非产业界的重要生产和服务性设备,也是先进制造技术领域不可缺少的自动化设备。
液压驱动是机械手中使用最为广泛的一中驱动方式。该灯壳冲压生产线用伺服型下料机械手的驱动方式也选用了液压驱动。因此,本次毕业设计的主要任务是为灯壳冲压自动生产线用伺服型下料机械手配备驱动系统。其中包括液压系统原理的设计,液压泵站的设计。此外,参照《机械手设计基础》还画出了机械手的外部结构图,升降油缸和回转油缸的装配图、手指和手腕的装配图。
本文主要叙述了液压方面的一些设计计算过程。其中包括:液压缸的参数设计,各种液压元件的选择,电机的选择,液压集成块的设计,液压系统的安装和维护。
关键字 机械手;液压驱动;液压泵站;液压系统
目录
摘要 I
Abstract II
第1章 绪论 1
1.1机械手在工业中的应用 1
1.2 机械手的组成 1
1.2.1 执行机构 2
1.2.2 驱动系统 2
1.2.3 控制系统 2
1.2.4 位置检测装置 2
第2章 概述 3
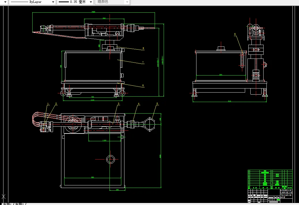
2.1下料机械手的规格参数 3
2.2 下料机械手的机械机构及其工作原理 4
2.2.1手臂升降、回转运动机构 4
2.2.2手臂伸缩运动机构 4
2.2.3手腕回转机构和手腕结构 5
第3章 下料机械手的液压系统工作原理 6
3.1 下料机械手的驱动方式 6
3.2 液压系统大体有以下五部分组成 6
3.3 液压传动的特点 6
3.4 下料机械手的液压系统工作原理 7
第4章 下料机械手液压油缸设计计算 10
4.1 手臂伸缩油缸的设计计算 10
4.1.1 伸缩缸外伸的载荷分析 10
4.1.2 伸缩缸的尺寸计算(以外伸时计算) 11
4.1.3 伸缩缸外伸时流量计算 11
4.1.4 缩缸回缩时所需的压力计算 11
4.1.5 缩缸的缸长的设计计算 11
4.1.6 缩缸回缩时所需的流量计算 12
4.2手臂回转油缸的设计计算 12
4.2.1 回转油缸的力矩计算 12
4.2.2 回转油缸的排量计算 12
4.3 夹紧油缸的设计计算 12
4.3.1 工作负载的分析 12
4.4 夹紧油缸所需压力计算 14
4.5夹紧油缸所需泵流量的计算 14
第5章 液压系统设计计算 16
5.1 液压泵的选择 16
5.1.2 液压泵的最大工作压力Pp 16
5.1.3 确定液压泵的最大流量Qp 16
5.1.4 确定液压泵 16
5.2 电机的选择 16
5.2.1 确定液压泵的驱动功率P 16
5.2.2 电机的选择 17
5.3 液压阀的选择与专用件的设计 17
5.3.1 液压阀的选择 17
5.3.2 管道尺寸的确定 18
5.3.3 邮箱容积的确定 18
5.3.4 液压油的选择 18
5.4 液压系统的发热温升的计算 19
5.4.1 液压系统的发热功率计算 19
5.4.2 液压系统的散热计算 19
第6章 液压集成块的设计 20
6.1 液压集成块的组成结构 20
6.2 集成块的设计步骤 20
第7章 液压站的设计 22
7.1油箱的设计 22
7.2液压站的结构设计 22
7.2.1 液压泵的电机安装方式 22
7.2.2 液压站的结构设计 23
第8章 液压泵的维护与安装 24
8.1 液压元件的安装 24
8.2 液压元件的维护 24
结论 25
致谢 26
参考文献 27
附录 28
温馨提示:
1、题目前面的备注【字母数字编号】为本站整理分类的编号,与课题内容无关,请选题时忽视;
2、若题目上备注三维,则表示文件里包含三维源文件,由于三维组成零件数量较多,为保证预览截图的简洁性,本站将三维文件夹进行了打包。三维及CAD预览截图,均为本站电脑打开软件进行截图的,保证能够打开,下载原件超高清,下载后解压即可;
3、本站所有资源如无特殊说明,都需要本地电脑安装Office2007。图纸软件为AutoCAD,PROE,UG,SolidWorks,CATIA等;
4、本站所有图文资料仅供用户学习参考,不作为任何商用或其他用途;
5、本站不保证下载资源的准确性、安全性和完整性, 不包修改,不支持退换,同时也不承担用户因使用这些下载资源对自己和他人造成任何形式的伤害或损失;
6、 下载文件中如有侵权或不适当内容,请与我们联系,我们立即纠正。