

作品包括:
Word版说明书1份,共41页,约15000字
外文翻译一份
CAD版本图纸,共4张
高温高压注蒸汽增压装置
摘 要
高温高压注蒸汽增压装置是基于我国油田许多地区地层压力高,渗透率低,油井太深,采不出油而提出的。目前,所使用的锅炉压力达不到实际要求,而且有的油井根本就注不进汽,无法进行热采。
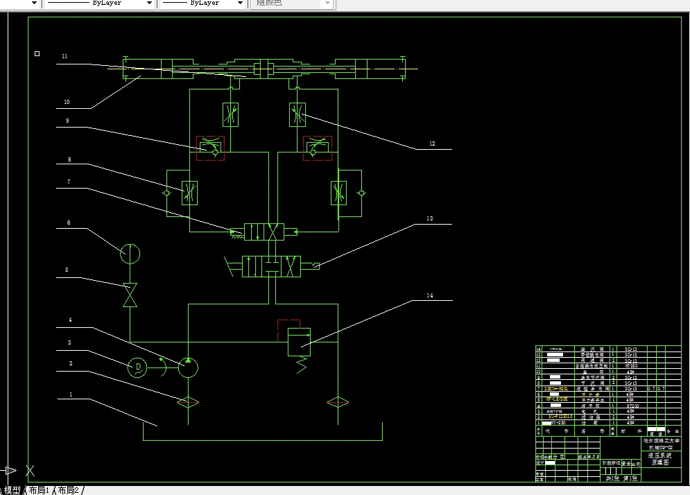
高温高压注蒸汽增压装置是利用自动换向液压系统使锅炉向地下注入高压蒸汽,进而地层压力提高,使油液开采出来。此装置使从锅炉输送来的低压蒸汽通过汽配流总成进入容积式柱塞泵中,驱动电流通过液压驱动系统推动柱塞泵对蒸汽加压,蒸汽被加压后通过出汽配流总成注入油井中。其设计重点是液压驱动系统的设计,自动换向液压缸的设计和液压泵站的设计。自控换向液压缸是将两端缓冲容腔的一部分设计成全封闭结构。缸在全行程运行时,两端全封闭的缓冲腔内瞬间产生高于系统工作压力的脉冲压力。用这个脉冲压力控制液动换向阀换向。自动换向液压系统与电磁换向相比较:故障较少,可靠性高。与之相关的设计:泵和电机的选择和设计,液压阀的选择,集成块的设计和邮箱的设计及有关元件的设计详见说明书。
关键词 蒸汽;增压;液压系统;自动换向;缓冲机构
目 录
第摘要 I
Abstract II
1章 绪 论 1
1.1 课题背景 1
1.2 课题简介 1
1.3 装置的技术参数 3
第2章 专用增压装置主体结构设计 4
2.1 总体结构设计 4
2.1.1 专用增压装置总体结构 4
2.2 主泵的结构设计 5
2.2.1 增压泵主泵组成 5
2.2.2 主泵的工作原理 5
2.2.3 相关的技术问题 5
2.3 主泵总体机构水利设计 5
2.3.1 泵的总体结构 5
2.3.2 泵配流总成的设计 7
2.3.3 主泵的驱动系统 9
2.4 本章小结 11
第3章 拟定液压系统原理图 12
3.1 基本回路的选择 12
3.2 应考虑的问题 12
第4章 液压系统的设计计算 14
4.1 明确液压系统的计算要求 14
4.2 绘制执行机构负载突和速度图 14
4.3 泵的设计计算 15
4.3.1 泵的排量计算 16
4.3.2 计算液压泵的压力 17
4.3.3 选择液压泵规格型号 17
4.4 驱动功率计算及电机的选择 17
第5章 液压缸的设计计算 19
5.1 确定液压缸主要尺寸 19
5.2 计算各运动阶段的压力、流量和功率 19
5.3 绘制液压缸工况图 20
5.4 液压缸各部分机构、材料及技术要求 20
5.4.1 柱塞和缸体的设计 21
5.4.2 缸盖设计 22
5.4.3 活塞设计 22
5.4.4 活塞杆设计 22
5.4.5 密封组件和润滑问题 22
5.5 液压缸的缓冲装置 23
第6章 系统损失的计算 24
6.1 管路系统压力损失计算 24
6.1.1 各管段长度、管直径及管头数 24
6.1.2 判断液流类型 24
6.1.3 沿程压力损失计算 25
6.1.4 局部压力损失 25
6.1.5 管路总压力损失及压力效率 25
6.2 系统温升的验算 25
6.2.1 系统发热计算 25
6.2.2 系统的散热计算 28
第7章 液压元件及辅助原件的选择 29
7.1 液压阀的选择 29
7.1.1 阀的型号的选择 29
7.1.2 阀类元件配置形式的选择 29
7.2 油管的计算与选择 30
7.2.1 金属管的内径计算 30
7.2.2 胶管设计中的注意事项 31
7.3 油箱的设计 32
7.3.1 油箱的设计要点 32
7.3.2 油箱的容量计算 32
结论 34
致谢 35
参考文献 36
附 录 37
温馨提示:
1、题目前面的备注【字母数字编号】为本站整理分类的编号,与课题内容无关,请选题时忽视;
2、若题目上备注三维,则表示文件里包含三维源文件,由于三维组成零件数量较多,为保证预览截图的简洁性,本站将三维文件夹进行了打包。三维及CAD预览截图,均为本站电脑打开软件进行截图的,保证能够打开,下载原件超高清,下载后解压即可;
3、本站所有资源如无特殊说明,都需要本地电脑安装Office2007。图纸软件为AutoCAD,PROE,UG,SolidWorks,CATIA等;
4、本站所有图文资料仅供用户学习参考,不作为任何商用或其他用途;
5、本站不保证下载资源的准确性、安全性和完整性, 不包修改,不支持退换,同时也不承担用户因使用这些下载资源对自己和他人造成任何形式的伤害或损失;
6、 下载文件中如有侵权或不适当内容,请与我们联系,我们立即纠正。