

作品包括:
Word版说明书1份,共40页,约15000字
任务书一份
开题报告一份
外文翻译一份
CAD版本图纸,共11张
摘 要
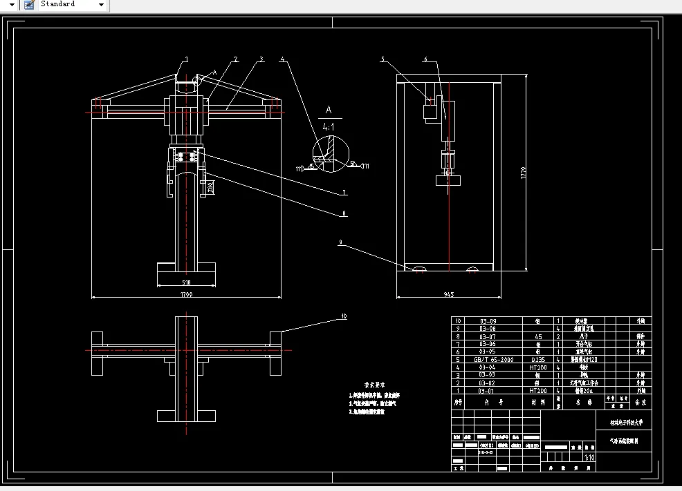
本课题是针对货车离合器装配线输送装置设计。该课题主要内容有:对货车离合器装配线输送装置相关资料的收集、功能的分析研究和调研多方面关于装配线输送装置的运动原理和控制原理,设计出一种适用于货车离合器产品生产线自动输送系统,该输送系统主要包括:链轮转动机构、链条传送机构、旋转机构和张紧机构。链轮机构传动用于运输离合器零件,旋转机构用于将工件检测,张紧机构用于保持链条的张紧传动。
本课题的具体设计为:根据输送零件的重量为18kg的特点,需要水平输送要求,、选择合适的链轮传动系统类型,旋转机构类型,并对系统进行相关参数的计算进而选择合适的链条、链轮、轴承、运动轴,设计出合适的传动机构实现输送功能。通过条件要求进行链轮系统设计,长度、宽度等尺寸的设计,运动规律的验算,实现送料的,传料的功能;根据条件需要零件进行检测,设计旋转检测机构。旋转机构采用六工位回转台,回转台上设计三个方向可调距离的挡板,实现不同零件尺寸的加工;根据搬运的零件结构为凸台式的上大下小的圆形特点,需要水平、竖直输送要求,设计气缸输送系统。气缸输送系统采用无杆气缸、直线气缸和开合气缸组合,由支架支撑,实现零件水平、竖直和开合的功能。气动手爪的设计,实现零件的抓起、搬运功能。最后将这些机构进行组装调试,实现输送系统的自动输送和搬运,从而改进加工工艺和降低工人劳动强度,改善工作环境。
关键词:自动输送料系统;链轮传动;张紧机构;气动系统。
目 录
1 绪论 1
1.1 装配线输送装置研究的意义 1
1.2 装配线输送装置设计的背景 2
1.3 研究规划 2
2 总体方案设计 4
2.1 课题不同设计方案对比 4
2.1.1方案一 4
2.1.2方案二 5
2.1.3方案三 6
2.2 总方案结构设计思路 7
3 输送链系统设计 7
3.1链条的设计 8
3.2 齿轮系设计与计算 10
3.3 轴的设计与校核 14
3.3.1选择轴的材料及热处理 14
3.3.2初算轴的最小直径 14
3.3.3确定轴上的零件的布置和固定方式 14
3.3.4计算轴上的载荷 14
3.3.5按许用弯曲应力校核轴 15
3.4 链轮张紧装置的设计 16
3.5顶梁杆的设计 16
3.6 调节杆设计 17
3.7 支撑钢板设计 17
4 回转台的设计 19
4.1工作台的设计 19
4.2 轴承的设计 19
4.2.1轴承的选型 19
4.3 电动机的设计 20
4.4 齿轮的设计 22
4.4.1选电机 22
4.4.2选定齿轮齿形、精度等级、材料及齿数。 22
4.4.3按齿面接触强度设计 23
4.4.4按齿根弯曲强度设计 25
4.4.5几何尺寸计算 26
4.4.6验算 26
5 气动系统设计 27
5.1 气缸及气动导轨的选择 28
5.1.1 气缸的组成 28
5.1.2气缸的选择 28
5.1.3气动导轨的设计 31
6 总结 31
谢 辞 34
参考文献 35
温馨提示:
1、题目前面的备注【字母数字编号】为本站整理分类的编号,与课题内容无关,请选题时忽视;
2、若题目上备注三维,则表示文件里包含三维源文件,由于三维组成零件数量较多,为保证预览截图的简洁性,本站将三维文件夹进行了打包。三维及CAD预览截图,均为本站电脑打开软件进行截图的,保证能够打开,下载原件超高清,下载后解压即可;
3、本站所有资源如无特殊说明,都需要本地电脑安装Office2007。图纸软件为AutoCAD,PROE,UG,SolidWorks,CATIA等;
4、本站所有图文资料仅供用户学习参考,不作为任何商用或其他用途;
5、本站不保证下载资源的准确性、安全性和完整性, 不包修改,不支持退换,同时也不承担用户因使用这些下载资源对自己和他人造成任何形式的伤害或损失;
6、 下载文件中如有侵权或不适当内容,请与我们联系,我们立即纠正。