

作品包括:
Word版说明书一份,共59页,约22000字
外文翻译一份
CAD版本图纸,共12张
摘 要
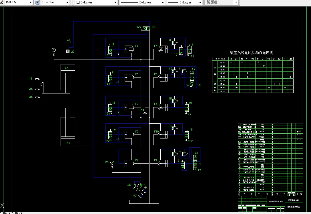
本设计为中型四柱式液压机,主机最大工作负载设计为2000KN。主机主要由上梁、导柱、工作台、移动横梁、主缸、顶出缸等组成。本文重点介绍了液压系统的设计。通过具体的参数计算及工况分析,制定总体的控制方案。经方案对比之后,拟定液压控制系统原理图。液压系统选用插装阀集成控制系统,插装阀集成控制系统具有密封性好,通流能力大,压力损失小等特点。为解决主缸快进时供油不足的问题,主机顶部设置补油油箱进行补油。主缸的速度换接与安全行程限制通过行程开关来控制;为了保证工件的成型质量,液压系统中设置保压回路,通过保压使工件稳定成型;为了防止产生液压冲击,系统中设有泄压回路,确保设备安全稳定的工作。此外,本文对液压站进行了总体布局设计,对重要液压元件进行了结构、外形、工艺设计,对主机、电气控制系统进行了简要设计。
通过液压系统压力损失和温升的验算,本文液压系统的设计可以满足液压机顺序循环的动作要求,能够实现塑性材料的锻压、冲压、冷挤、校直、弯曲等成型加工工艺。
关键词:液压系统;液压机;毕业设计
目 录
第1章 绪论 1
1.1 液压机现状概要 1
1.2 本文拟达到的要求 2
第2章 四柱液压机总体方案设计 3
2.1 四柱液压机主要设计参数 3
2.2 四柱液压机工作原理分析 3
2.2.1 四柱液压机的基本组成 3
2.2.2 四柱液压机的工作原理 4
2.3 四柱液压机工艺方案设计 6
2.4 四柱液压机总体布局方案设计 6
2.5 四柱液压机零部件设计 7
2.5.1 主机载荷分析 7
2.5.2 主机工作台设计 10
2.5.3 控制台设计 10
第3章 四柱液压机液压系统设计 10
3.1 液压传动的优越性概述 11
3.2 液压系统设计要求 11
3.2.1 液压机负载确定 11
3.2.2 液压机主缸工艺过程分析 12
3.2.3 液压系统设计参数 12
3.3 液压系统设计 12
3.3.1 液压机主缸工况分析 12
3.3.2 液压机顶出缸工况分析 15
3.3.3 液压系统原理图拟定 16
3.3.4 液压系统基本参数计算 21
3.4 液压系统零部件设计 28
3.4.1 液压机主缸设计 28
3.4.2 液压机顶出缸设计 32
3.4.3 液压油管设计 33
3.4.4 液压油箱设计 35
3.5 液压站布局设计 36
3.5.1 液压站设计需要考虑的问题 36
3.5.2 液压站的结构设计 36
3.6 液压系统安全、稳定性验算 37
3.6.1 液压系统压力损失验算 37
3.6.2 液压系统温升验算 41
第4章 四柱液压机电气系统设计 42
4.1 电气控制概述 42
4.2 四柱液压机电气控制方案 42
4.2.1 四柱液压机电气控制方式选择 42
4.2.2 电气控制要求与总体控制方案 42
4.3 四柱液压电气控制电路设计 43
4.3.1 四柱液压机主电路设计 43
4.3.2 四柱液压机控制电路设计 43
4.3.3 电气控制过程分析 45
第5章 四柱液压机安装调试和维护 46
5.1 四柱液压机的安装 47
5.2 四柱液压机的调试 47
5.3 四柱液压机的保养维护 47
结论 48
参考文献 49
致谢 51
附录1 52
附录2 53
温馨提示:
1、题目前面的备注【字母数字编号】为本站整理分类的编号,与课题内容无关,请选题时忽视;
2、若题目上备注三维,则表示文件里包含三维源文件,由于三维组成零件数量较多,为保证预览截图的简洁性,本站将三维文件夹进行了打包。三维及CAD预览截图,均为本站电脑打开软件进行截图的,保证能够打开,下载原件超高清,下载后解压即可;
3、本站所有资源如无特殊说明,都需要本地电脑安装Office2007。图纸软件为AutoCAD,PROE,UG,SolidWorks,CATIA等;
4、本站所有图文资料仅供用户学习参考,不作为任何商用或其他用途;
5、本站不保证下载资源的准确性、安全性和完整性, 不包修改,不支持退换,同时也不承担用户因使用这些下载资源对自己和他人造成任何形式的伤害或损失;
6、 下载文件中如有侵权或不适当内容,请与我们联系,我们立即纠正。