

作品包括:
Word版说明书1份,共56页,约16000字
CAD版本图纸,共18张
Proe三维图一份
摘要
如今随着汽车产业的高速发展,全球汽车总保有量直线上升,当然,环境污染、能源短缺这些问题也凸显出来。石油的供给量面临着巨大的挑战,汽车产业的发展面临严峻的挑战。而新能源的发现与采用,能真正实现“零排放”,即电能驱动,所以该领域也是各国生产研发的焦点。
轮边减速器的引入,作为与电动汽车相匹配的部件,其能够在传动比不变的条件下,省去差速器这一部分,增加了底盘可布置空间以及离地间隙,提升可通过性,并减少半轴等部件的载荷,目前该减速器主要应用于载重货车及一些大型工程车辆。轮边减速器的使用与研究,对实际工作有重要意义。
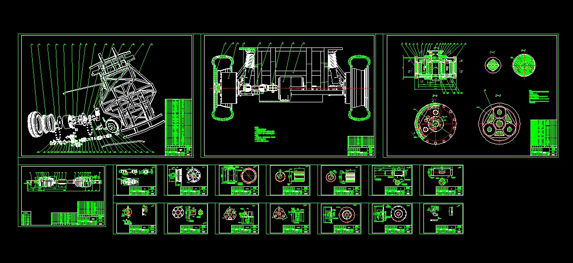
本文研究无人智能车轮边减速器,该减速器的结构为渐开线圆柱齿轮行星传动,齿圈固定,太阳轮为输入端,行星架为输出端。本次设计将使用pro/E建立三维模型,对轮边减速器的内部结构进行优化设计,并进行应力分析和动态仿真,通过强度校核增加减速器本身的强度,并对减速器的布置与连接进行了优化设计。
关键词:轮边减速器,三维模型,分析与仿真
?
目录
摘要I
AbstractII
1 绪论1
1.1研究背景1
1.2国内外相关研究状况2
1.2.1国外相关研究状况2
1.2.2国内相关研究状况3
1.3研究目的与内容5
1.3.1研究目的5
1.3.2研究内容5
1.3.3研究的意义5
1.3.4小结5
2轮边减速器、车架总体方案设计及三维建模6
2.1其工作原理及存在的问题6
2.1.1工作原理6
2.1.2轮边减速器存在的问题7
2.2方案设计及选型8
2.2.1传动方式的选型8
2.2.2齿轮结构设计10
2.3小结10
3轮边减速器传动设计计算11
3.1传动装置总体设计11
3.1.1选择电机11
3.1.2传动配齿计算12
3.2太阳轮设计计算13
3.2.1按齿面接触疲劳强度设计13
3.2.2齿面接触疲劳强度校核14
3.2.3齿根弯曲疲劳强度校核15
3.3行星轮及齿圈计算17
3.3.1行星轮参数17
3.3.2内齿圈参数17
3.3.3行星轮、内齿圈校核17
3.4行星架设计18
3.4.1行星架结构18
3.4.2行星架近似计算18
3.5输入轴,行星轴的设计校核及轴承选用21
3.5.1输入轴设计校核21
3.5.2行星轮轴设计校核24
3.5.3轴承选用及校核26
3.6车架及其他零部件的设计27
4整车模拟三维装配29
4.1三维零件图29
4.2三维装配图33
5机械结构静力分析仿真36
5.1轮边减速器关键零部件静态分析36
5.1.1输入轴分析36
5.1.2输出轴分析37
5.1.3行星架上部分析38
5.1.4行星架下部分析39
5.1.5太阳齿轮分析39
5.1.6行星齿轮轴分析40
5.1.7汽车轮毂分析41
6方案可行性分析42
6.1合理性分析42
6.2节能环保性分析42
6.3经济性分析42
7结论43
参考文献44
致谢46
毕业设计(论文)知识产权声明47
毕业设计(论文)独创性声明48
附录49
附录A:毕业设计(论文)外文文献原文49
附录B:毕业设计(论文)外文文献翻译49
温馨提示:
1、题目前面的备注【字母数字编号】为本站整理分类的编号,与课题内容无关,请选题时忽视;
2、若题目上备注三维,则表示文件里包含三维源文件,由于三维组成零件数量较多,为保证预览截图的简洁性,本站将三维文件夹进行了打包。三维及CAD预览截图,均为本站电脑打开软件进行截图的,保证能够打开,下载原件超高清,下载后解压即可;
3、本站所有资源如无特殊说明,都需要本地电脑安装Office2007。图纸软件为AutoCAD,PROE,UG,SolidWorks,CATIA等;
4、本站所有图文资料仅供用户学习参考,不作为任何商用或其他用途;
5、本站不保证下载资源的准确性、安全性和完整性, 不包修改,不支持退换,同时也不承担用户因使用这些下载资源对自己和他人造成任何形式的伤害或损失;
6、 下载文件中如有侵权或不适当内容,请与我们联系,我们立即纠正。