

作品包括:
Word版说明书1份,共38页,约13000字
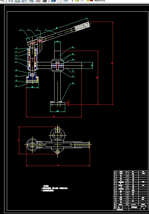
CAD版本图纸,共7张
摘 要
压花镜框成型机是电机通过V带带动成型铣刀转动,通过夹紧装置夹紧工件、滑动控制台进行前后的铣削加工镜框的过程。压花镜框成型机在国内的应用已经十分广泛,因此前人在这方面已经积累了许多宝贵的经验。设计的过程中,在充分了解和学习前人的设计经验的同时,积极思考,努力发现新问题并进行创新设计,力求通过设计锻炼发现问题、分析问题、解决问题的能力。
本设计压花镜框成型机是由滑动控制台、三相异步电动机、铣削装置及各种夹紧压头组成。通过夹紧装置固定镜框材料,在滑动控制台完成铣削。经过文献的阅读了解压花镜框成型机的基本构造,能够较好的完成设计要求。
本设计在可行性分析基础上,确定了压花镜框成型机的总体机构方案,完成了各个部分的结构拟定和结构设计。
关键词:滑动;成型;夹紧;带传动;铣刀加工
目 录
摘 要 I
Abstract II
第1章 绪论 1
1.1 概论 1
1.2 木工机械的现状和发展趋势 1
1.2.1 木工机械 1
1.2.2 木工机械的现状 1
1.2.3 木工机械的发展趋势 2
1.3 压花镜框成型机的总体设计方案 3
1.4 压花镜框成型机的设计原则 4
1.5 压花镜框成型机的设计步骤 4
第2章 电动机的选择 6
2.1 电动机的选择 6
2.2 本章小结 7
第3章 成形铣刀轴组件的设计计算 8
3.1 主轴的设计计算 8
3.1.1 初步确定轴的最小直径 8
3.1.2 轴上零件的轴向和周向定位 9
3.1.3 轴的结构设计 9
3.1.4 轴的受力分析 10
3.2 校核轴的强度 11
3.2.1 按当量弯矩校核轴的强度 11
3.3 本章小结 15
第4章 带传动的设计计算 16
4.1 V带的选用及初步拟定 16
4.1.1 设计功率 16
4.1.2 选择V带的带型 17
4.1.3 传动比 17
4.1.4 带轮的选择 17
4.1.5 带轮的工作图 20
4.2 带传动的轴承选择 20
4.3 平键联结的强度计算 21
4.4 本章小结 21
第5章 弹簧夹紧装置之弹簧的设计计算 22
5.1 弹簧夹紧装置之弹簧的选用 22
5.2 弹簧夹紧装置之弹簧的计算 22
5.3 弹簧的稳定性计算 24
5.4 本章小结 24
第6章 轴承的选择校核及箱体及铣刀结构的确定 26
6.1 各轴上的轴承选择 26
6.2 轴承的校核 26
6.3 箱体结构设计 27
6.4 铣刀结构设计 28
6.5 润滑方案 28
6.5.1 轴承的润滑 28
6.5.2 压筒以及手轮压头的润滑 28
6.5.3 滑动系统的润滑 28
6.6本章小结 29
第7章 机器的使用和维护 30
7.1 使用注意事项 30
7.2 保养与维护 30
7.2.1 V带的保养及维护 30
7.2.2 整机保养 30
7.3 故障排除 31
7.4 本章小结 31
结 论 32
致 谢 33
参考文献 34
温馨提示:
1、题目前面的备注【字母数字编号】为本站整理分类的编号,与课题内容无关,请选题时忽视;
2、若题目上备注三维,则表示文件里包含三维源文件,由于三维组成零件数量较多,为保证预览截图的简洁性,本站将三维文件夹进行了打包。三维及CAD预览截图,均为本站电脑打开软件进行截图的,保证能够打开,下载原件超高清,下载后解压即可;
3、本站所有资源如无特殊说明,都需要本地电脑安装Office2007。图纸软件为AutoCAD,PROE,UG,SolidWorks,CATIA等;
4、本站所有图文资料仅供用户学习参考,不作为任何商用或其他用途;
5、本站不保证下载资源的准确性、安全性和完整性, 不包修改,不支持退换,同时也不承担用户因使用这些下载资源对自己和他人造成任何形式的伤害或损失;
6、 下载文件中如有侵权或不适当内容,请与我们联系,我们立即纠正。