

作品包括:
word版设计说明书一份,26页,约17000字
CAD版本图纸,共6张
摘 要
随着数控技术的发展和普及,加工中心的作用越发突显它的重要性。为进一步提高数控机床的加工效率,数控机床正向着工件在一台机床一次装夹即可完成多道工序或全部工序加工的方向发展,因此出现了各种类型的加工中心机床,如车削中心、镗铣加工中心、钻削中心等等。这类多工序加工的数控机床在加工过程中要使用多种刀具,因此必须有自动换刀装置,也就是所说的刀库,以便选用不同刀具,完成不同工序的加工工艺。自动换刀装置应当具备换刀时间短、刀具重复定位精度高、足够的刀具储备量、占地面积小、安全可靠等特性。
本论文是开发设计出一种体积小、结构紧凑、价格较低、生产周期短的小型立式加工中心无机械手换刀刀库。首先介绍了国内外加工中心研究现状及发展趋势,阐明了本课题研究的目的、意义。然后进一步介绍本小型加工中心刀库总体结构和各部件方案的选择,并在此基础上进行了小型加工中心刀库的机械结构的设计计算,主要包括刀盘部件设计(含刀盘,夹块,刀爪),刀库转动定位机构设计(含转臂,槽轮,滚子,锁止盘),刀库总体机构设计(含轴承套,轴,箱盖,箱体)刀库移动部分设计。
关键词:数控系统 加工中心 刀库
目录
摘要……………………………………………………………………………I
1 绪论…………………………………………………………………………1
1.1 国内外的研究现状和发展趋势…………………………………………1
1.1.1 当前世界NC机床的研究现状……………………………………1
1.1.2 我国数控机床产业的发展状况……………………………………2
1.1.3 加工中心的发展动向………………………………………………3
1.1.4 我国数控机床研究存在的问题……………………………………3
1.2 加工中心概论……………………………………………………………3
1.2.1 自动换刀系统产品化的意义和前景………………………………4
1.3 本论文研究的目的和意义………………………………………………5
1.4 本论文完成的主要工作…………………………………………………5
2 总体方案的设计……………………………………………………………6
2.1 运动方案的设计…………………………………………………………6
2.1.1 运动数目的确定……………………………………………………6
2.1.2 运动方案的确定……………………………………………………6
2.2 功能部件的设计方案……………………………………………………6
2.2.1 主传动系统…………………………………………………………7
2.2.2 进给伺服系统………………………………………………………8
2.2.3自动换刀系统………………………………………………………8
2.2.4 基础部件……………………………………………………………9
2.2.5 数控系统……………………………………………………………10
2.2.6 辅助装置……………………………………………………………10
2.3 总体布局…………………………………………………………………11
2.4 主要技术参数……………………………………………………………11
2.5 小结………………………………………………………………………12
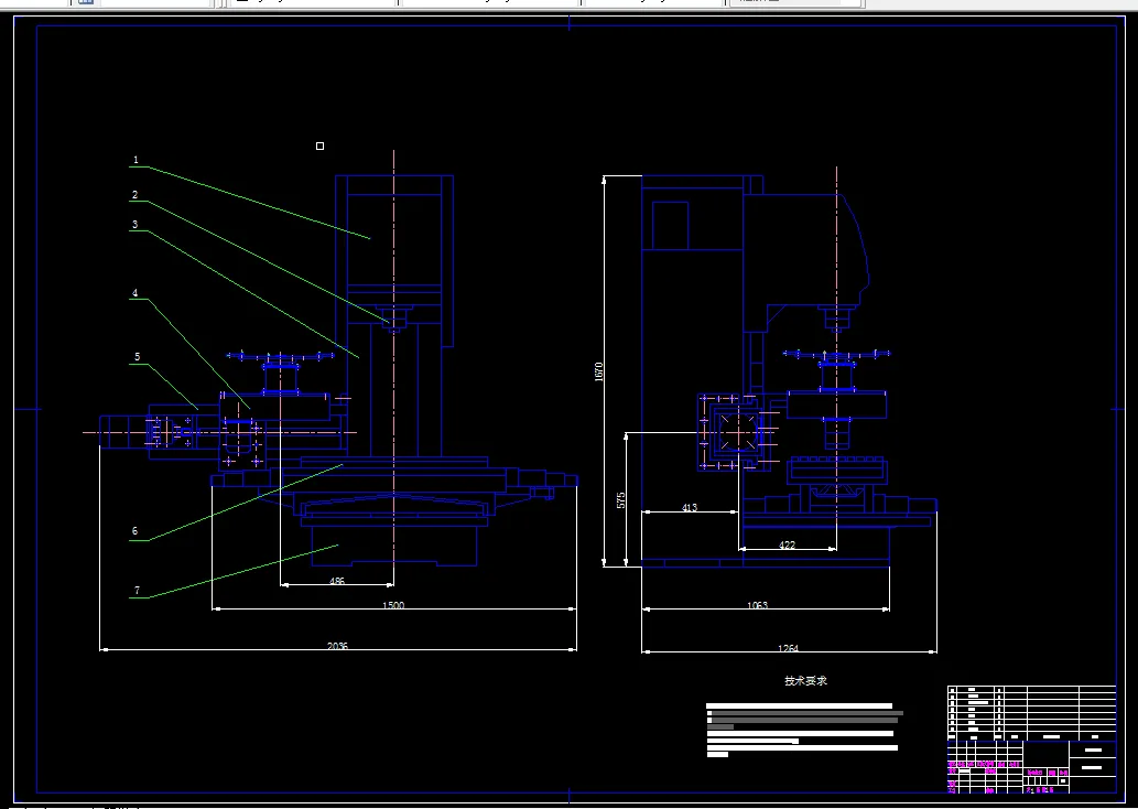
3 刀库的设计…………………………………………………………………13
3.1 刀库的结构设计…………………………………………………………13
3.1.1 刀库主要参数的确定………………………………………………13
3.1.2 刀盘部分的设计……………………………………………………13
3.1.3 刀库转动定位机构的设计…………………………………………13
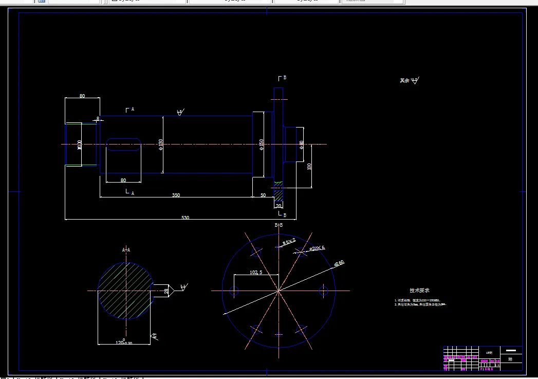
3.1.4 轴的设计……………………………………………………………16
3.1.5 滚动轴承的选择计算………………………………………………18
3.1.6 键的选用与计算……………………………………………………19
3.1.7 刀库的支承部分的设计……………………………………………19
3.2 刀库移动部分的设计……………………………………………………20
3.2.1 刀库支承横梁和导轨的设计………………………………………20
3.2.2 刀库移动丝杠和电机的选择………………………………………21
3.3 刀库、横梁的安装………………………………………………………21
3.4 小结………………………………………………………………………21
结论………………………………………………………………………………22
致谢………………………………………………………………………………23
参考文献…………………………………………………………………………24
温馨提示:
1、题目前面的备注【字母数字编号】为本站整理分类的编号,与课题内容无关,请选题时忽视;
2、若题目上备注三维,则表示文件里包含三维源文件,由于三维组成零件数量较多,为保证预览截图的简洁性,本站将三维文件夹进行了打包。三维及CAD预览截图,均为本站电脑打开软件进行截图的,保证能够打开,下载原件超高清,下载后解压即可;
3、本站所有资源如无特殊说明,都需要本地电脑安装Office2007。图纸软件为AutoCAD,PROE,UG,SolidWorks,CATIA等;
4、本站所有图文资料仅供用户学习参考,不作为任何商用或其他用途;
5、本站不保证下载资源的准确性、安全性和完整性, 不包修改,不支持退换,同时也不承担用户因使用这些下载资源对自己和他人造成任何形式的伤害或损失;
6、 下载文件中如有侵权或不适当内容,请与我们联系,我们立即纠正。