

作品包括:
说明书一份,共38页,约13000字
CAD版本图纸,共14张

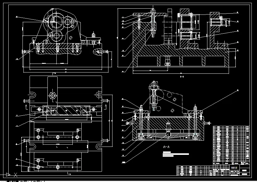
摘要:本课题是香烟横包机右支架的机械加工工艺设计和镗床镗模设计,因为零件本身不是很复杂,而且加工精度不是很高,所以其工艺简单。通过对零件的工艺分析,设计了工艺规程,确定了其毛坯的制造形式、加工基准和设计基准、工艺路线、机械加工余量和各工序的切削用量及基本工时,也确定了选用的刀具与机床。为提高劳动生产效率,降低劳动强度,设计了三个平行孔的专用夹具,基于零件的几何形状,设计其夹具为T68镗床上的专用镗模,通过对其定位基准、引刀方式、夹紧方案的选择,最终确定了主要用于加工零件的孔系的镗模,它依靠专用的导向元件——镗套引导镗孔刀具,保证了加工达到了较高的位置精度,并使镗孔的位置精度不受机床精度的影响,利用其夹具精加工孔系时保证了平行孔轴线距误差小于±0.02mm;平行孔的不平行或不垂直度小于0.01/200;平行孔不同轴度误差小于0.01mm。
关键词:加工工艺,夹具,加工精度,镗模
目录
1 绪论 2
1.1 现代制造技术和工艺 2
1.2现代机械工业的生产特点 2
1.3夹具及其作用 3
1.4现代机床夹具的发展方向 3
1.5 本课题的任务和主要内容 5
2 零件的分析 6
2.1零件的结构与作用 6
3 工艺规程的设计 9
3.1确定毛坯的制造形式 9
3.2 基准的选择 9
3.3 制订工艺路线 9
3.4 机械加工余量 10
3.5 确定切削用量及基本工时 14
4 专用夹具设计 31
4.1 问题提出 31
4.2 夹具的设计 31
结论 36
致谢 37
参考文献 38
温馨提示:
1、题目前面的备注【字母数字编号】为本站整理分类的编号,与课题内容无关,请选题时忽视;
2、若题目上备注三维,则表示文件里包含三维源文件,由于三维组成零件数量较多,为保证预览截图的简洁性,本站将三维文件夹进行了打包。三维及CAD预览截图,均为本站电脑打开软件进行截图的,保证能够打开,下载原件超高清,下载后解压即可;
3、本站所有资源如无特殊说明,都需要本地电脑安装Office2007。图纸软件为AutoCAD,PROE,UG,SolidWorks,CATIA等;
4、本站所有图文资料仅供用户学习参考,不作为任何商用或其他用途;
5、本站不保证下载资源的准确性、安全性和完整性, 不包修改,不支持退换,同时也不承担用户因使用这些下载资源对自己和他人造成任何形式的伤害或损失;
6、 下载文件中如有侵权或不适当内容,请与我们联系,我们立即纠正。