

作品包括:
Word版说明书1份,共42页,约13000字
工序卡9张
工艺过程卡1张
CAD版本图纸,共8张

摘要
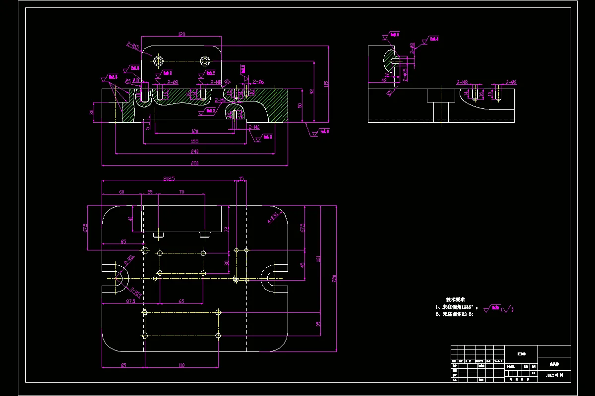
专用夹具在现在的机械加工过程中发挥着重要的作用,实现了加工件的定位和夹紧。本次设计研究的对象是轴承座。主要研究的内容包括零件的加工工艺设计及对铣38前端面工序做出专用夹具设计。
轴承座的典型的座架类零件,也是连接和安装轴承的重要基础件。其主要作用是为轴承提供安装和支撑。为轴承、轴以及机构或者机器的正常工作护航。在对加工工艺设计之前,首先完成了零件作用及零件图的分析,确定了零件的生产类型,制造方式及加工余量,绘制毛坯图。设计加工工艺路线,计算工序卡中涉及到的切削用量等。最后,完善了工艺卡及工序卡。
专用夹具设计的内容为:确定零件的定位方案;选取夹紧装置还有夹紧元件;对夹具体进行了设计和确定;为保证零件的加工精度,选取了对刀装置;对零件在装夹过程中的夹紧力和切削力进行计算等等。最后,完成专用夹具的夹具装配图还有所有非标准的零件图。
关键词:轴承座;加工工艺;专用夹具;切削用量;定位
目录
摘要I
Abstract II
引言部分1
1绪论2
1.1机床夹具的研究现状2
1.2现代机床夹具的发展方向2
2零件的作用、工艺分析及生产类型的确定4
2.1零件的作用分析4
2.2零件的工艺分析4
2.3零件生产类型的确定5
3零件的机械加工工艺规程设计6
3.1零件制造形式的确定6
3.2基准的选择6
3.3选择、比较和确定加工工艺路线6
3.4加工设备、夹具、刀具及量具的确定8
3.5机械加工余量的确定8
3.6确定切削用量及基本工时11
4铣38前端面专用夹具的设计29
4.1确定定位方案,选择定位元件29
4.2确定夹紧方案,选择夹紧元件29
4.3夹具体的设计29
4.4对刀装置—对刀块的选择29
4.5铣削力的计算29
4.6夹紧力的计算29
4.7定位误差的分析30
总结内容31
参考文献32
致谢33
附录34
温馨提示:
1、题目前面的备注【字母数字编号】为本站整理分类的编号,与课题内容无关,请选题时忽视;
2、若题目上备注三维,则表示文件里包含三维源文件,由于三维组成零件数量较多,为保证预览截图的简洁性,本站将三维文件夹进行了打包。三维及CAD预览截图,均为本站电脑打开软件进行截图的,保证能够打开,下载原件超高清,下载后解压即可;
3、本站所有资源如无特殊说明,都需要本地电脑安装Office2007。图纸软件为AutoCAD,PROE,UG,SolidWorks,CATIA等;
4、本站所有图文资料仅供用户学习参考,不作为任何商用或其他用途;
5、本站不保证下载资源的准确性、安全性和完整性, 不包修改,不支持退换,同时也不承担用户因使用这些下载资源对自己和他人造成任何形式的伤害或损失;
6、 下载文件中如有侵权或不适当内容,请与我们联系,我们立即纠正。