

作品包括:
Word版说明书1份,共38页,约13000字
工序卡12张
工艺过程卡1张
CAD版本图纸,共7张

摘要
本设计主要内容包括油压马达座的工艺规程设计以及镗φ240孔镗床专用夹具设计。在设计过程中完成了零件图、毛坯图、夹具体装配图和夹具体零件图的绘制及说明书的编写。
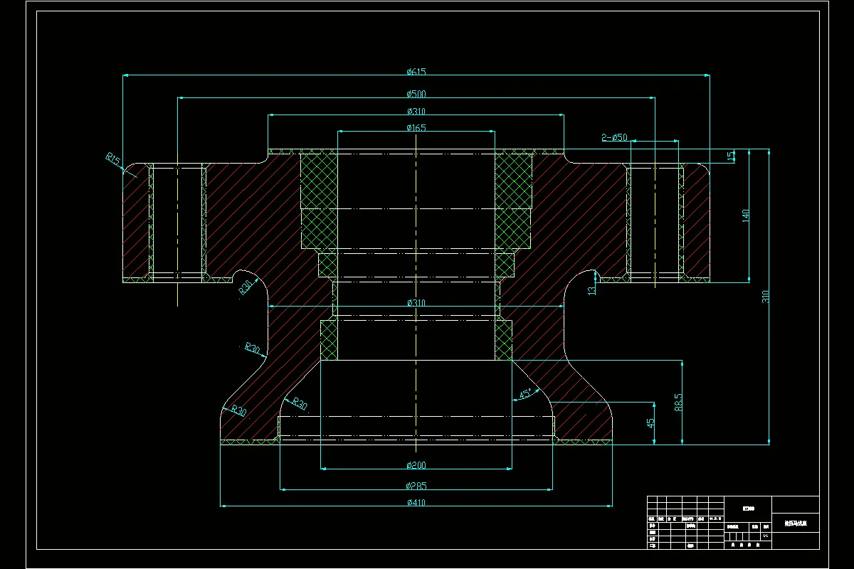
油压马达座零件结构不复杂,而且为铸件,油压马达座是油压马达上重要的零件之一,其作用是为其正常的工作提供保障,还具有支承的作用。
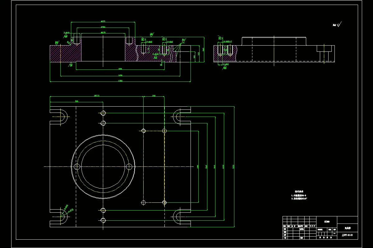
本次设计针对φ240孔的加工设计了一套镗床专用夹具,采用夹具体、圆柱销和菱形销满足定位要求,又通过夹紧装置保证加工过程中不会产生较大误差。保证了夹紧的可靠性。
关键词:油压马达座、工艺规程,φ240孔、镗床
目录
摘要I
第一章引言1
1.1机床夹具的功能和作用1
1.1.1机床夹具的功能1
1.1.2机床夹具的作用1
1.2机床夹具的组成2
1.3机床夹具的设计要求3
1.4机床夹具的发展现状3
第二章零件的分析4
2.1零件的作用分析4
2.2零件的表面组成分析4
2.3零件的加工要求分析4
2.4零件的形位公差分析5
第三章零件的工艺规程设计6
3.1确定零件的材料及生产类型6
3.2确定零件的加工基准6
3.2.1粗基准的选择6
3.2.2精基准的选择6
3.3确定零件的制造形式7
3.4工艺过程设计中应考虑的主要问题7
3.4.1加工方法选择的原则7
3.4.2加工阶段的划分7
3.4.3工序的合理组合8
3.5零件加工工艺路线的制定9
3.6确定零件的加工机床、夹具、刀具及量具11
3.7确定零件的加工余量11
3.8确定零件的切削用量及基本工时13
第四章镗Ф240孔专用夹具设计29
4.1确定零件的定位方案及定位元件29
4.1.1确定零件的定位方案29
4.1.2确定零件的定位元件29
4.2确定零件的夹紧方案及夹紧元件30
4.2.1确定零件的夹紧方案30
4.2.2确定零件的夹紧元件30
4.3确定夹具体30
4.4导向装置的选择31
4.5计算镗削力和夹紧力31
4.5.1计算镗削力31
4.5.2计算夹紧力32
4.6计算定位误差33
结论34
致谢35
参考文献36
温馨提示:
1、题目前面的备注【字母数字编号】为本站整理分类的编号,与课题内容无关,请选题时忽视;
2、若题目上备注三维,则表示文件里包含三维源文件,由于三维组成零件数量较多,为保证预览截图的简洁性,本站将三维文件夹进行了打包。三维及CAD预览截图,均为本站电脑打开软件进行截图的,保证能够打开,下载原件超高清,下载后解压即可;
3、本站所有资源如无特殊说明,都需要本地电脑安装Office2007。图纸软件为AutoCAD,PROE,UG,SolidWorks,CATIA等;
4、本站所有图文资料仅供用户学习参考,不作为任何商用或其他用途;
5、本站不保证下载资源的准确性、安全性和完整性, 不包修改,不支持退换,同时也不承担用户因使用这些下载资源对自己和他人造成任何形式的伤害或损失;
6、 下载文件中如有侵权或不适当内容,请与我们联系,我们立即纠正。