

作品包括:
Word版说明书1份,共41页,约13000字
任务书一份
工序卡12张
工艺过程卡1张
CAD版本图纸,共8张

摘要
夹具是零件加工的夹紧装置,是加工零件的一种必不可少的装置。随着零件的尺寸变化,越来越多的夹具被淘汰了,因此,设计一套专用夹具是十分有必要的。在设计专用夹具时要考虑工件的定位方案,工件的夹紧方案和设计夹紧机构,夹具的其他组成部分,夹具的结构形式等。
本课题的主要研究内容是连杆零件机械加工工艺规程设计及加工螺孔M14×1.5-7H螺纹底孔夹具设计。连杆是在机械加工中常用的零件之一,在各种机器中应用广泛,为机器的正常运转提供强有力的保证,最终使得设备按照预想的方法进行相应的运动。
结合零件加工的重点和难点,从零件的结构分析入手,合理的进行定位基准选择、夹具的设计、各种刀具参数选择以及切削用量的选择等。在安排工艺过程时,根据加工要求不同,需要进行粗精加工。另外还确定了切削参数,加工工时,填写工艺过程卡片和工序卡片。设计一套加工M14×1.5-7H螺纹底孔钻床专用夹具。
关键词:连杆、加工工艺、M14×1.5-7H、钻床、专用夹具
目录
摘要I
Abstract II
第一章绪论1
1.1机械制造及机床夹具概述1
1.2机床夹具的设计要点1
第二章零件的分析2
2.1零件的作用2
2.2零件的组成表面、加工要求、形位公差分析2
2.2.1零件的组成表面2
2.2.2零件的技术要求3
2.2.3零件的形位公差3
第三章零件的工艺规程设计4
3.1确定零件的生产类型及毛坯的制造形式4
3.1.1确定零件的生产类型4
3.1.2确定毛坯的制造形式4
3.2基准的选择与确定5
3.3加工工艺路线确定6
3.4加工机床及加工装备的选择7
3.5确定加工余量7
3.6计算切削用量、基本时间及辅助时间10
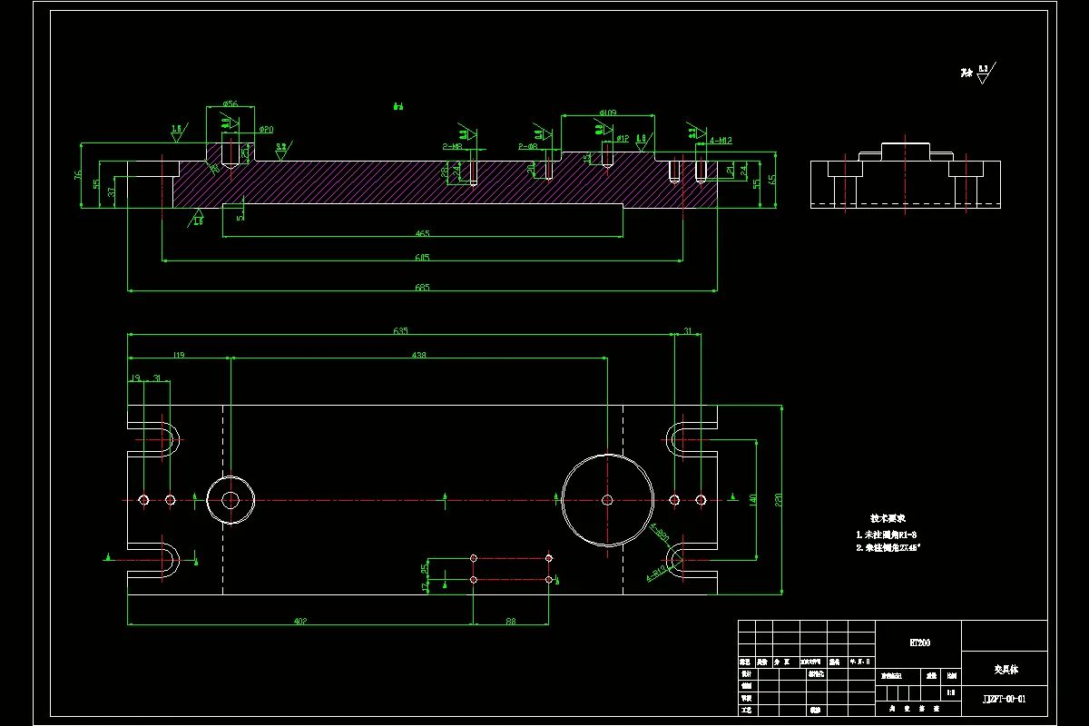
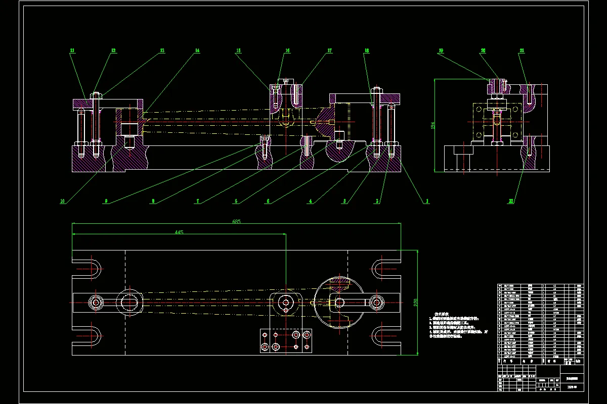
第四章钻M14×1.5-7H螺纹底孔夹具设计30
4.1定位方案及装置的确定30
4.1.1设计定位方案应满足的要求30
4.1.2定位方案的确定30
4.1.3定位元件的确定30
4.2夹紧方案及装置的确定31
4.2.1设计夹紧装置应遵循的原则31
4.2.2夹紧装置满足的基本要求32
4.2.3夹紧方案的确定32
4.2.4夹紧元件的确定32
4.3夹具体的设计32
4.4导向装置确定33
4.5钻削力的计算33
4.6夹紧力的计算34
4.7定位误差的分析与计算34
结论36
致谢37
参考文献38
温馨提示:
1、题目前面的备注【字母数字编号】为本站整理分类的编号,与课题内容无关,请选题时忽视;
2、若题目上备注三维,则表示文件里包含三维源文件,由于三维组成零件数量较多,为保证预览截图的简洁性,本站将三维文件夹进行了打包。三维及CAD预览截图,均为本站电脑打开软件进行截图的,保证能够打开,下载原件超高清,下载后解压即可;
3、本站所有资源如无特殊说明,都需要本地电脑安装Office2007。图纸软件为AutoCAD,PROE,UG,SolidWorks,CATIA等;
4、本站所有图文资料仅供用户学习参考,不作为任何商用或其他用途;
5、本站不保证下载资源的准确性、安全性和完整性, 不包修改,不支持退换,同时也不承担用户因使用这些下载资源对自己和他人造成任何形式的伤害或损失;
6、 下载文件中如有侵权或不适当内容,请与我们联系,我们立即纠正。