

作品包括:
Word版说明书1份,共47页,约15000字
CAD版本图纸,共4张
摘要
法兰盘是一种盘状零件,法兰盘也叫法兰。法兰就是使管子与管子相互连接的零件,连接于管端。为了保证产品的质量,提高加工效率,需要对其加工工艺进行优化设计,并在关键工序使用专用机床进行加工。本次课题主要任务是通过查阅相关资料,了解法兰盘用途,性能,特点,看懂零件图,确定毛坯,绘制毛坯图,拟定法兰盘工艺路线,制作工艺卡片等。
首先,对零件进行分析,主要是零件作用的分析和工艺分析,通过零件分析可以了解零件的基本情况,而工艺分析可以知道零件的加工表面和加工要求。根据零件图提出的加工要求,确定毛坯的制造形式和尺寸的确定。
其次,进行基面的选择,确定加工过程中的粗基准和精基准。根据选好的基准,制订工艺路线,通常制订两种以上的工艺路线,通过工艺方案的比较与分析,再选择可以使零件的几何形状、尺寸精度及位置精度等技术要求得到合理的保证的一种工序。
再者,根据已经选定的工序路线,确定每一步的切削用量及基本工时,并选择合适的机床和刀具。对于粗加工,还要校核机床功率。
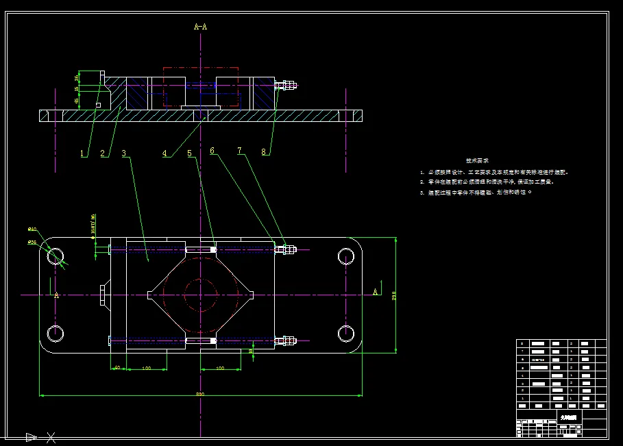
最后,设计法兰盘一道工序的夹具。先提出设计问题,再选择定位基准,然后开始切削力、夹紧力的计算和定位误差的分析。然后把设计的过程整理为图纸。
关键词:法兰盘 ; 加工工艺 ;夹具设计
目录
摘要 I
Abstract II
第一章 绪论 1
1.1 发展背景 1
1.2 本文研究的意义 2
第二章 零件的分析 3
2.1 零件的作用 3
2.2 零件的工艺分析 3
第三章 零件的工艺规程设计 5
3.1 确定毛坯的制造形式 5
3.2 拟定零件的机械加工工艺路线 5
3.2.1 定位基准的选择: 5
3.2.2 粗基准的选择 5
3.2.3 零件表面加工顺序的确定 7
3.2.4工艺方案分析 8
3.3 加工设备和工艺装备的选择 9
3.3.1机床及刀具的选择 9
3.3.2 加工余量的确定及毛坯的尺寸 10
3.3.3切削用量的计算 14
第四章 夹具设计 23
4.1 提出问题 23
4.2 夹具设计 23
4.2.1 定位基准的选择 24
4.2.2切削力及夹紧力的计算 24
4.3 定位误差分析 25
4.4夹具设计及操作的简要说明 26
总结 28
致谢 29
参 考 文 献 30
附录一 31
温馨提示:
1、题目前面的备注【字母数字编号】为本站整理分类的编号,与课题内容无关,请选题时忽视;
2、若题目上备注三维,则表示文件里包含三维源文件,由于三维组成零件数量较多,为保证预览截图的简洁性,本站将三维文件夹进行了打包。三维及CAD预览截图,均为本站电脑打开软件进行截图的,保证能够打开,下载原件超高清,下载后解压即可;
3、本站所有资源如无特殊说明,都需要本地电脑安装Office2007。图纸软件为AutoCAD,PROE,UG,SolidWorks,CATIA等;
4、本站所有图文资料仅供用户学习参考,不作为任何商用或其他用途;
5、本站不保证下载资源的准确性、安全性和完整性, 不包修改,不支持退换,同时也不承担用户因使用这些下载资源对自己和他人造成任何形式的伤害或损失;
6、 下载文件中如有侵权或不适当内容,请与我们联系,我们立即纠正。