

作品描述:
Word版说明书1份,共75页,约36000字
外文翻译一份
CAD版本图纸,共7张
摘 要
带式输送机是一种连续动作式运输设备,凭借其优越的性能,现已被广泛应用于国民经济的各个部门中。特别是对高产高效矿井,带式输送机已成为煤炭高效开采机电一体化技术的关键设备。目前,带式输送机正向长距离、大功率、大运量、大倾角的方向发展,以使其在煤炭行业中得到更广泛的应用。
大倾角下运带式输送机设计的技术关键是保持物料在运行过程中的稳定性和制动系统的合理设计。本次设计中采用了人字形浅花纹胶带和双排V形深槽托辊组,以防止滚料现象的发生。为了防止飞车事故的发生,根据现有各种制动方式的制动原理,设计中采用了发电制动装置与液压推杆制动器配合使用的制动方式,实现制动的同时将机械能转换为电能回馈到电网中去。
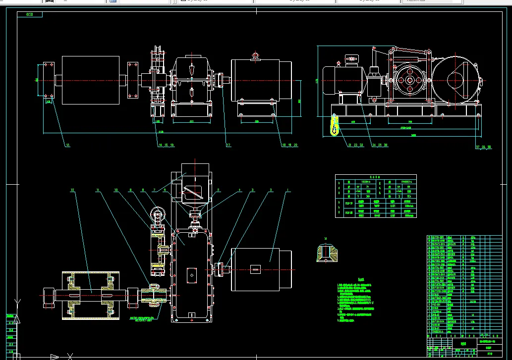
本次设计的重点是传动系统的设计。所设计传动系统由电动机、发电机、离合器、制动器、联轴器和传动滚筒六部分组成。考虑到井下空间上的限制,将制动系统与驱动系统设计成一体,共用一个变速机构,以节省空间。同时,根据相关参数对输送机其他部件进行了选型设计,完成了输送机的整机设计。
本次设计为大倾角下运带式输送机提出了新的制动思路,具有进一步研究的价值。
关键词:带式输送机;大倾角;下运;发电制动
目 录
1 概述 1
1.1带式输送机 1
1.1.1带式输送机的分类 1
1.1.2带式输送机的结构原理 1
1.2国内外带式输送机的发展现状 1
1.3大倾角带式输送机 2
1.3.1深槽形带式输送机 2
1.3.2压带式输送机 3
1.3.3裙边带式输送机 3
1.4大倾角下运带式输送机设计 3
1.4.1大倾角下运带式输送机技术关键 3
1.4.2增加倾角的主要方法 4
1.4.3下运制动技术 5
2 带式输送机设计 7
2.1工作条件与原始参数 7
2.2输送带速度与宽度的确定 7
2.2.1输送带速度的选择 7
2.2.2输送带宽度的确定 7
2.2.3输送带宽度的核算 8
2.2.4输送带型号初选 9
2.3圆周驱动力计算 10
2.3.1主要阻力 10
2.3.2附加阻力 12
2.3.3特种主要阻力 12
2.3.4附加特种阻力 13
2.3.5倾斜阻力 13
2.3.6圆周驱动力 14
2.4输送带张力计算 14
2.4.1输送带不打滑条件限制 14
2.4.2输送带下垂度的限制 15
2.4.3运行阻力计算 15
2.4.4各特性点张力计算 16
2.4.5输送带验算 17
2.5传动功率计算 18
2.5.1滚筒传动轴功率 18
2.5.2电机功率计算 19
2.6传动滚筒相关参数计算 19
2.6.1传动滚筒合张力计算 19
2.6.2传动滚筒直径初选 19
2.6.3传动滚筒最大扭矩计算 19
2.7拉紧行程与拉紧力计算 20
2.7.1拉紧行程计算 20
2.7.2拉紧力计算 20
3 传动装置的设计与计算 22
3.1传动方案的确定 22
3.2电机选型 22
3.2.1电动机选型 22
3.2.2发电机选型 23
3.3减速器的设计与计算 23
3.3.1总传动比的计算 23
3.3.2传动比分配 23
3.3.3运动和动力参数计算 24
3.3.4直齿圆锥齿轮传动的设计与计算 26
3.3.5直齿圆柱齿轮传动的设计与计算(轴Ⅱ与轴Ⅲ间) 29
3.3.6其它齿轮设计与计算 32
3.3.7高速轴Ⅰ的设计 33
3.3.8其它轴的设计 36
3.3.9键的校核 36
3.3.10各组轴承的选用 38
3.3.11箱体的设计 40
3.3.12减速器附件的设计 40
3.4制动器选型 41
3.4.1制动装置的作用和种类 41
3.4.2制动装置的选型 42
3.5离合器选型 42
3.5.1离合器 42
3.5.2离合器的选用 43
3.6联轴器选型 43
4 带式输送机主要部件的选用 45
4.1输送带 45
4.1.1输送带的分类 45
4.1.2输送带的连接 45
4.2托辊 46
4.2.1托辊的作用与类型 46
4.2.2托辊的选型 47
4.2.3托辊间距 47
4.2.4托辊的校核 47
4.3滚筒 49
4.3.1传动滚筒 49
4.3.2改向滚筒 50
4.4拉紧装置 51
4.5清扫装置 52
4.5.1常用清扫装置的形式与特点 52
4.5.2清扫器的安装位置 53
参考文献 56
英文原文 57
中文译文 66
致 谢 72
温馨提示:
1、题目前面的备注【字母数字编号】为本站整理分类的编号,与课题内容无关,请选题时忽视;
2、若题目上备注三维,则表示文件里包含三维源文件,由于三维组成零件数量较多,为保证预览截图的简洁性,本站将三维文件夹进行了打包。三维及CAD预览截图,均为本站电脑打开软件进行截图的,保证能够打开,下载原件超高清,下载后解压即可;
3、本站所有资源如无特殊说明,都需要本地电脑安装Office2007。图纸软件为AutoCAD,PROE,UG,SolidWorks,CATIA等;
4、本站所有图文资料仅供用户学习参考,不作为任何商用或其他用途;
5、本站不保证下载资源的准确性、安全性和完整性, 不包修改,不支持退换,同时也不承担用户因使用这些下载资源对自己和他人造成任何形式的伤害或损失;
6、 下载文件中如有侵权或不适当内容,请与我们联系,我们立即纠正。