

作品包括:
说明书1份,共29页,约15000字左右
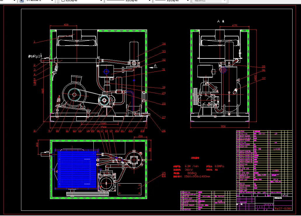
CAD版本本图纸,共10张
3D三维图一份
摘 要
石材既是人类历史上最古老的建筑材料,又是全球最具艺术价值和经济价值的建筑装饰材料。随着科学技术的进步,特别是机械设备及金刚石工具在石材产业中的大量应用,使得世界石材产业迅速发展为国际化产业。对其发展中石材行加工设备扮演者不可或缺的角色。
本课题来源于石材磨抛送料机,石材磨抛机是指毛板石材进行整平、磨抛的一种大型高功效专业机器设备。因石材本身较重、运输定位难等特征导致石材磨抛必须需要一套对应的特殊送料设备才可更好的完成相关抛磨工作。
本文运用大学所学知识,设计了一款磨抛送料机构,本送料机通过送料机构的旋转或翻转可更好的适应不同抛磨加工要求,并避免了石材加工过程中运输、翻转、定位等诸多麻烦。
关键字:机械设备、石材加工,送料机,磨抛机
目 录
摘要 I
Abstract II
1 引言 1
1.1 课题的来源与研究的目的和意义 1
1.2 磨抛机送料机构的用途 2
1.3 磨抛机送料机构的特点 1
1.4 本课题研究的内容 3
1.5 proe设计基础 4
1.5.1 草图绘制 5
1.5.2 基准特征,参考几何体的创建 6
1.5.3 拉伸、旋转、扫描和放样特征建 7
1.5.4 工程图的设计 10
1.5.5 装配设计 11
2 磨抛机送料机构的总体设计 12
2.1 磨抛机送料机构的总体方案图 12
2.2 磨抛机送料机构的工作原理 15
2.3 磨抛机送料机构的设计计算 17
2.3.1齿轮的设计计算 18
2.3.2联轴器的选型 19
2.3.3液压缸的选型计算 19
3 磨抛机送料机构的三维建模 24
4.1总体结构三维建模 25
4.2齿轮系三维建模 25
4.3液压缸的三维建模 27
5 三维软件设计总结 29
结论 30
致谢 31
参考文献 32
温馨提示:
1、题目前面的备注【字母数字编号】为本站整理分类的编号,与课题内容无关,请选题时忽视;
2、若题目上备注三维,则表示文件里包含三维源文件,由于三维组成零件数量较多,为保证预览截图的简洁性,本站将三维文件夹进行了打包。三维及CAD预览截图,均为本站电脑打开软件进行截图的,保证能够打开,下载原件超高清,下载后解压即可;
3、本站所有资源如无特殊说明,都需要本地电脑安装Office2007。图纸软件为AutoCAD,PROE,UG,SolidWorks,CATIA等;
4、本站所有图文资料仅供用户学习参考,不作为任何商用或其他用途;
5、本站不保证下载资源的准确性、安全性和完整性, 不包修改,不支持退换,同时也不承担用户因使用这些下载资源对自己和他人造成任何形式的伤害或损失;
6、 下载文件中如有侵权或不适当内容,请与我们联系,我们立即纠正。