

作品包括:
Word版设计说明书1份
CAD版本图纸,共17张
摘要
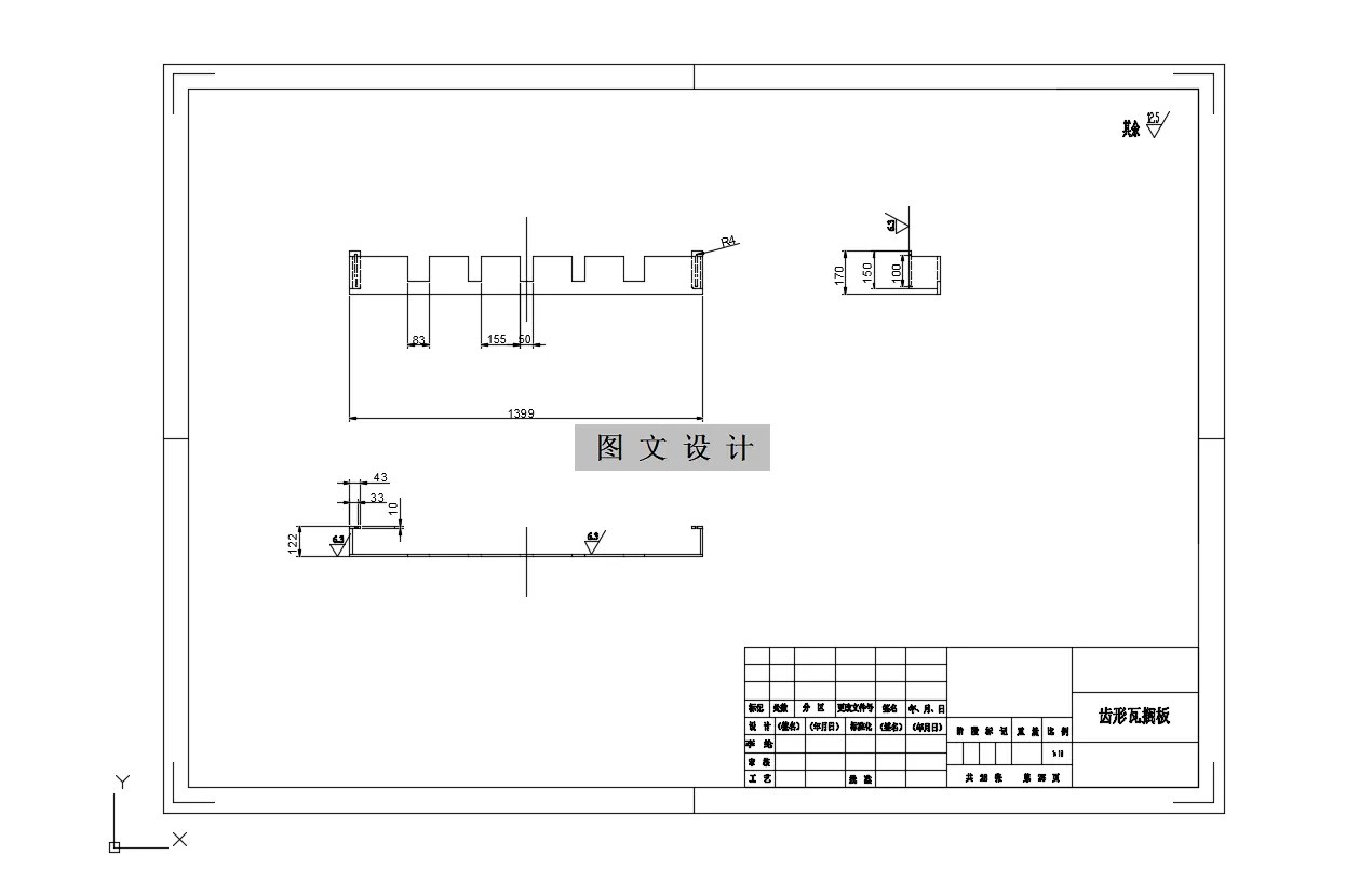
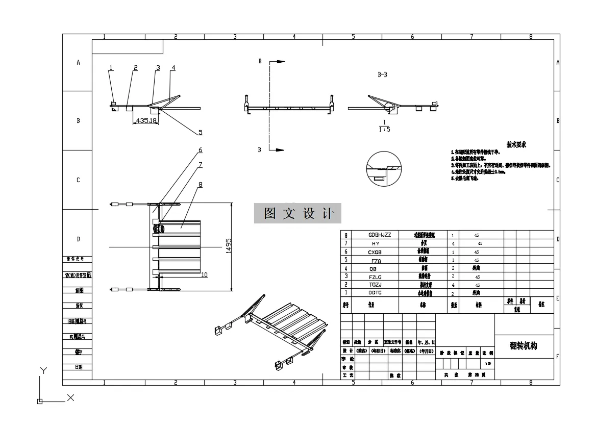
随着水泥加工业的不断发展,以前的旧瓦片逐渐被淘汰,水泥瓦开始崭露头角。水泥瓦作为屋面材料十分可靠耐用,多年来随着建筑业的快速发展用量呈不断上升趋势。因为有运输的距离限制,大部分城市都建有水泥瓦的生产企业,这也给制造水泥瓦生产设备的企业带来了巨大的商机,本文的主要研究对象为水泥瓦的前身——水泥膜料,研究内容是水泥膜料生产完成之后的卸料过程,卸料过程十分重要,决定了生产效率和最终产品的质量。 本文主要研究并设计的内容是水泥膜料的升降横移式卸料系统,根据设计要求确定了整个系统的总体方案,整体结构分为两个部分:升降系统和抓取系统。分析出两种系统的具体结构,在进行具体计算分析之后,对主要零部件和关键支承件、连接件进行了选型和设计。
温馨提示:
1、题目前面的备注【字母数字编号】为本站整理分类的编号,与课题内容无关,请选题时忽视;
2、若题目上备注三维,则表示文件里包含三维源文件,由于三维组成零件数量较多,为保证预览截图的简洁性,本站将三维文件夹进行了打包。三维及CAD预览截图,均为本站电脑打开软件进行截图的,保证能够打开,下载原件超高清,下载后解压即可;
3、本站所有资源如无特殊说明,都需要本地电脑安装Office2007。图纸软件为AutoCAD,PROE,UG,SolidWorks,CATIA等;
4、本站所有图文资料仅供用户学习参考,不作为任何商用或其他用途;
5、本站不保证下载资源的准确性、安全性和完整性, 不包修改,不支持退换,同时也不承担用户因使用这些下载资源对自己和他人造成任何形式的伤害或损失;
6、 下载文件中如有侵权或不适当内容,请与我们联系,我们立即纠正。