

作品包括:
Word版设计说明书1份
CAD版本图纸,共14张
SW三维图一套
摘要
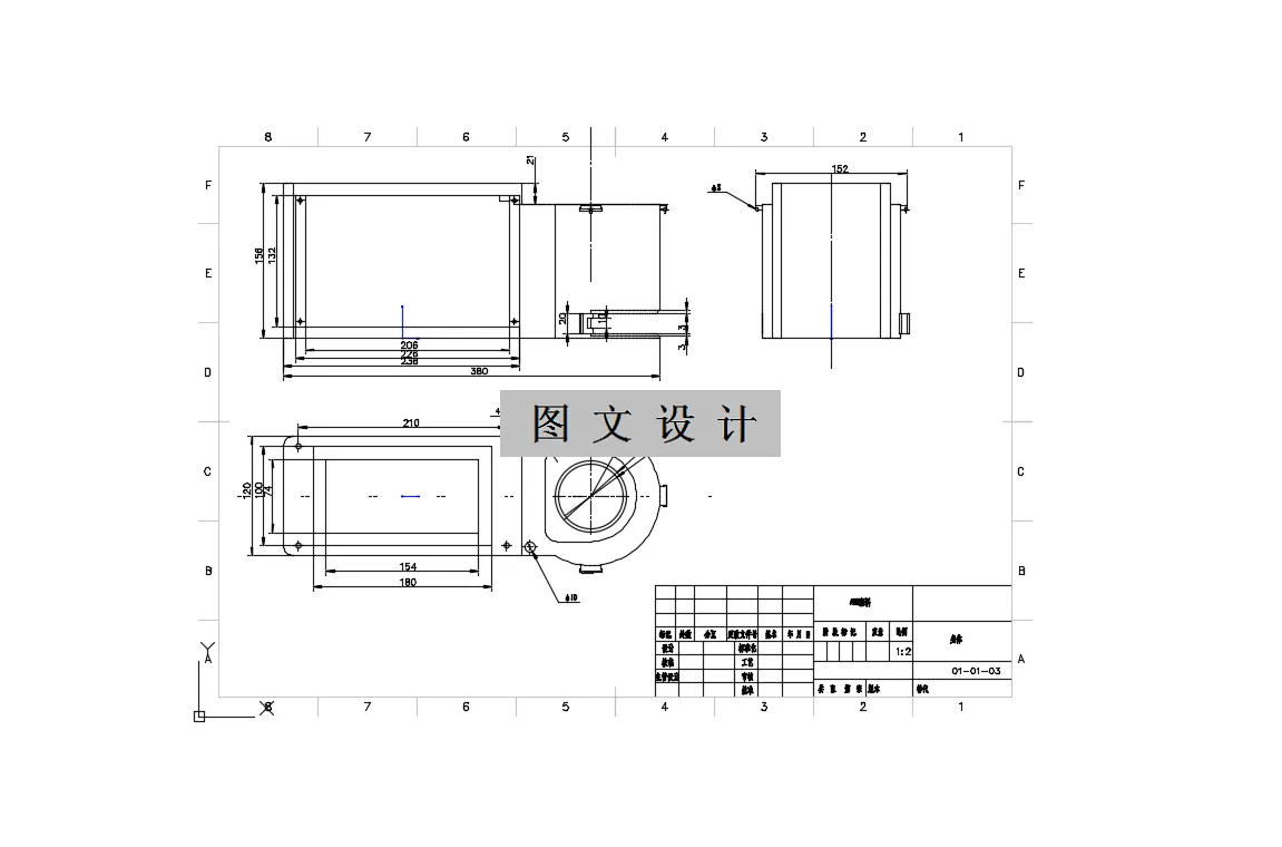
本设计提供一种高效清理黑板擦的精巧设备,包括壳体、风道、垫片、刮片、电 机、风扇、滤网等。利用 SolidWorks 建模软件对黑板擦清理机进行建模,对清理机各部分进行具体结构设计,包括尺寸,安装方式,连接方法等。在必要的零件制造采用 3D 打印技术,合理安装。 本设计结果表明:对于此结构的黑板擦清洁机而言,刮板应置于清理机顶部,刮板内部设置刮条,而后设置垫片,下连风道上顶面,风道置于壳体内部,与吸尘器筒体相连接,盛灰盒置于吸尘器筒体底部,吸尘器上盖与筒体相连,电机和风扇安装在吸尘器上盖内部,用电机压圈限制位置。
温馨提示:
1、题目前面的备注【字母数字编号】为本站整理分类的编号,与课题内容无关,请选题时忽视;
2、若题目上备注三维,则表示文件里包含三维源文件,由于三维组成零件数量较多,为保证预览截图的简洁性,本站将三维文件夹进行了打包。三维及CAD预览截图,均为本站电脑打开软件进行截图的,保证能够打开,下载原件超高清,下载后解压即可;
3、本站所有资源如无特殊说明,都需要本地电脑安装Office2007。图纸软件为AutoCAD,PROE,UG,SolidWorks,CATIA等;
4、本站所有图文资料仅供用户学习参考,不作为任何商用或其他用途;
5、本站不保证下载资源的准确性、安全性和完整性, 不包修改,不支持退换,同时也不承担用户因使用这些下载资源对自己和他人造成任何形式的伤害或损失;
6、 下载文件中如有侵权或不适当内容,请与我们联系,我们立即纠正。