

作品包括:
Word版设计说明书1份
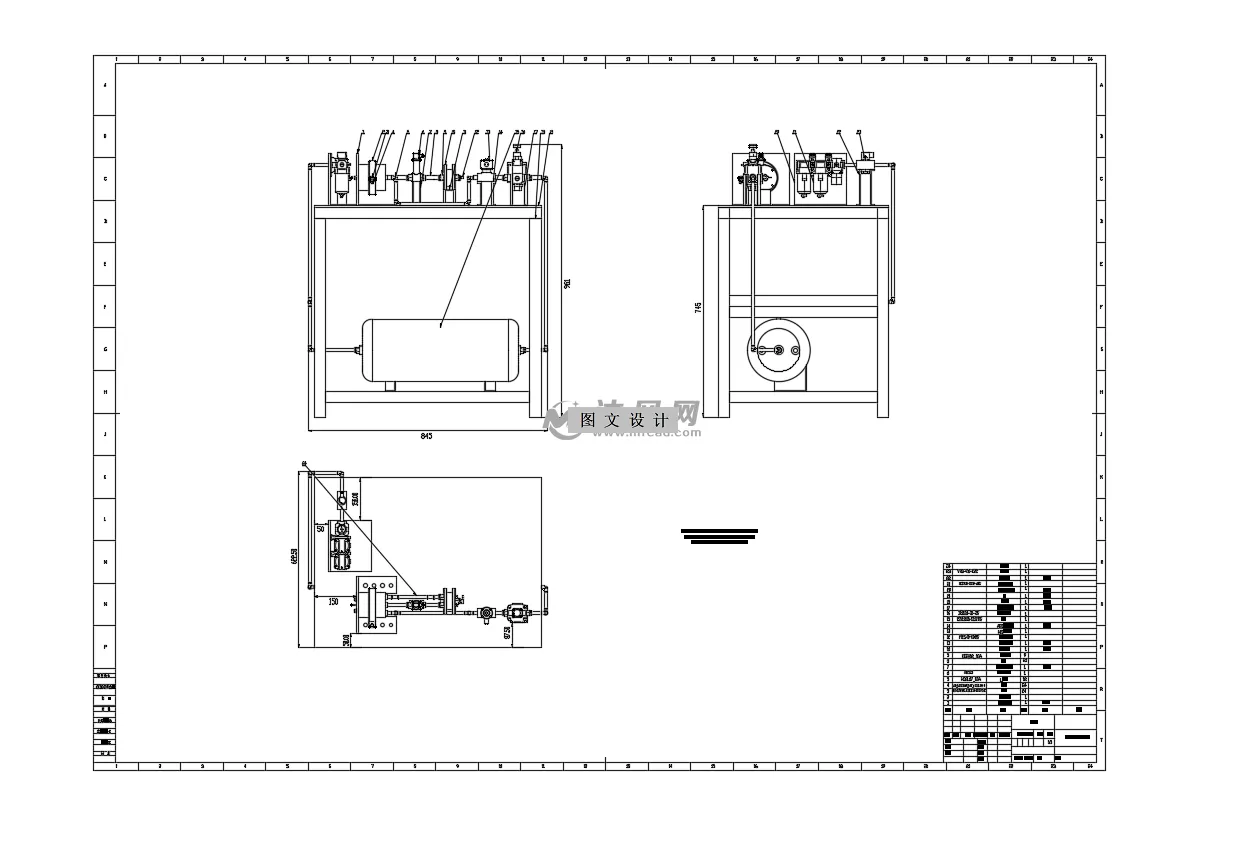
CAD版本图纸,共4张
UG三维图一份
摘要
由于气压制动系统具有制动力大、可靠性高等优点,它在中、重型汽车的制动领域占据着及其重大的地位。但由于气体的可压缩性和传输延迟使得气压制动系统在实际工作中存在压力偏差和时间偏差,因此需要更加精确地评估和控制气压制动系统的压力响应。本文以气压制动系统中的制动气室为研究对象,提出以其内部的压力变化率作为整个气压制动系统动态特性的评价指标。为了直接测量制动气室中的压力变化率,本文提出和设计了一种压力变化率测试装置以满足对制动压力变化率的检测。
温馨提示:
1、题目前面的备注【字母数字编号】为本站整理分类的编号,与课题内容无关,请选题时忽视;
2、若题目上备注三维,则表示文件里包含三维源文件,由于三维组成零件数量较多,为保证预览截图的简洁性,本站将三维文件夹进行了打包。三维及CAD预览截图,均为本站电脑打开软件进行截图的,保证能够打开,下载原件超高清,下载后解压即可;
3、本站所有资源如无特殊说明,都需要本地电脑安装Office2007。图纸软件为AutoCAD,PROE,UG,SolidWorks,CATIA等;
4、本站所有图文资料仅供用户学习参考,不作为任何商用或其他用途;
5、本站不保证下载资源的准确性、安全性和完整性, 不包修改,不支持退换,同时也不承担用户因使用这些下载资源对自己和他人造成任何形式的伤害或损失;
6、 下载文件中如有侵权或不适当内容,请与我们联系,我们立即纠正。