

作品包括:
Word版说明书1份,共31页,约13000字
CAD版本图纸,共8张
UG三维图一份
Proe三维图一份
摘要
从古至今,花生一直是我国主要的农作物,在国际市场上也有着非常紧要的地位。一直以来我国花生的种植面积在世界范围内一直名列前茅,对花生产业的影响也非比寻常。
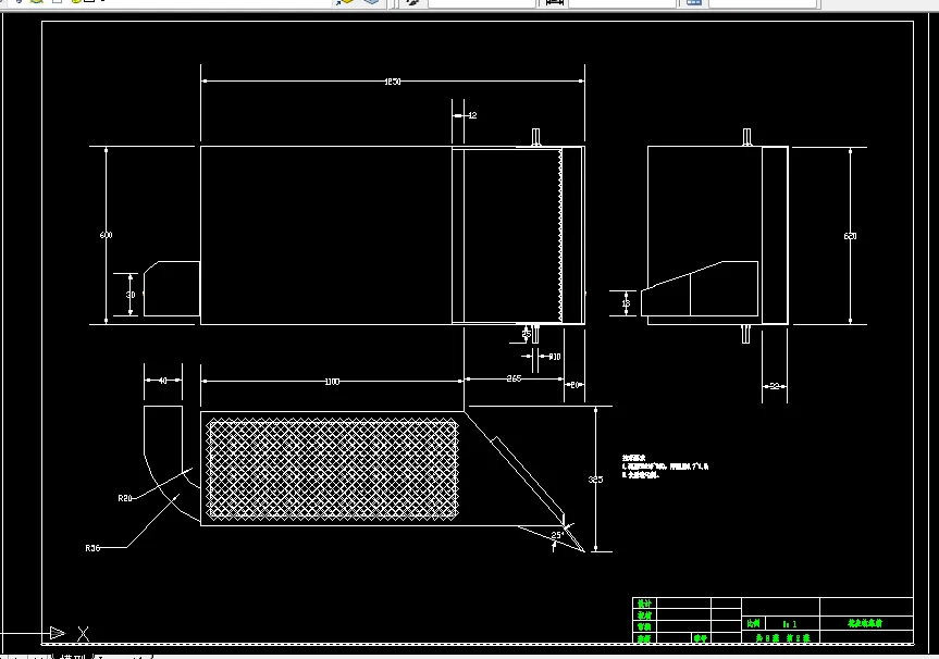
如今国内花生主要是由人工收获,因此设计一个合适的花生收获机是非常必要的。本文主通过收集花生种植方面的资料和一些国外先进花生收获及的资料,根据实际需求结合和机械设计守则,设计了一种半喂入花生联合收获机,描述了其整体的工作流程,介绍了整机的机构,主要有挖掘清土机构、摘果机构、藤蔓输送机构、动力传输机构、机架机构组成该收获机能够实现挖掘、清土、收集果实和铺放藤蔓等作业一体化完成。通过AutoCAD和Pro/E对部分零件进行对整机的虚拟装配。通过一些理论的计算,对该机器的挖掘铲、机架、连杆和轴等主要零部件进行了分析设计。
花生联合收获机设计根据当前农业生产的要求,在设计内容上主要将挖掘与清土相结合设计出一种新型的挖掘装置,简化了传统挖掘与清土分开进行的结构,减少了收获机的制作成本,让更广大的农民能够接受。
关键词 花生收获机;挖掘铲;联合
目 录
摘要 I
Abstract II
目 录 I
1 绪论 1
1.1 研究的目的及意义 1
1.2 花生收获机简介 1
1.2.1 花生收获机的研究现状 2
1.3 现状分析 2
1.3.1国外花生收获机发展现状 2
1.3.2国内花生收获机的发展现状 6
2 总体方案设计 12
2.1设计要求 12
2.2 设计方案分析 12
2.3 行走方式 13
2.4 总体方案的确定及工作原理 13
3 主要零部件设计 15
3.1输送装置的功率确定 15
3.2挖掘铲的设计 16
3.2.1工作角度分析 16
3.2.2确定挖掘机铲长D 17
3.2.3铲面宽度分析 18
3.2.4挖掘铲表面距离土壤表面最高距离的分析 19
3.3 带轮的设计 19
3.4平行连杆机构的主要参数及行走轮的设定 20
3.5轴的设计与校核 20
结论 24
致谢 25
参考文献 26
温馨提示:
1、题目前面的备注【字母数字编号】为本站整理分类的编号,与课题内容无关,请选题时忽视;
2、若题目上备注三维,则表示文件里包含三维源文件,由于三维组成零件数量较多,为保证预览截图的简洁性,本站将三维文件夹进行了打包。三维及CAD预览截图,均为本站电脑打开软件进行截图的,保证能够打开,下载原件超高清,下载后解压即可;
3、本站所有资源如无特殊说明,都需要本地电脑安装Office2007。图纸软件为AutoCAD,PROE,UG,SolidWorks,CATIA等;
4、本站所有图文资料仅供用户学习参考,不作为任何商用或其他用途;
5、本站不保证下载资源的准确性、安全性和完整性, 不包修改,不支持退换,同时也不承担用户因使用这些下载资源对自己和他人造成任何形式的伤害或损失;
6、 下载文件中如有侵权或不适当内容,请与我们联系,我们立即纠正。