

作品包括:
Word版说明书1份,共27页,约10000字
CAD版本图纸,共10张
三维图一份
前 言
新疆是一个棉花种植大省,随着时间的积累,塑料残膜对棉田地的污染越来越严重。解决残膜
污染问题已成为当下重中之重。为了提高残膜的回收效率,并结合新疆棉田地貌特点以及国内外对
残膜回收机械的研究现状,设计了一款分区式残膜回收机械,该机械降低了收膜过程中残膜的破损
程度,提高了残膜回收的效率。
本文首先叙述了目前我国残膜污染的现状,阐述了本文选题的目的、意义及选题背景。通过对
国内外残膜回收机机械的研究比较,借鉴了现有残膜回收机械的优点,避免了以往残膜回收机械的
不足。运用了solidworks 和 cad 软件对分区式残膜回收机械进行了整体设计。重点研究了收膜装置。其次,对牵引装置的速度和收膜装置进行了试验研究,通过 origin 软件对试验数据进行处理,得到了牵引速度在4.5km/h,滚齿长度为 80mm 的时候为最佳组合,残膜回收率可以达到 90%以上。最后总结了本论文的创新点和设计成果。
关键词:残膜回收;机构;牵引速度;残膜回收机
目 录
1 绪论 1
1.1 课题研究的意义 1
1.2 国内外残膜回收机械发展现状 1
1.3 国内外残膜回收机械存在的问题 2
1.4 研究的内容和目标 3
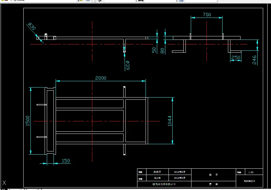
2 分区式残膜回收机的框架设计与切膜装置的研究 3
2.1 分区式残膜回收机整体的框架研究 3
2.2 切膜装置的研究 5
3 分区式残膜回收机起膜装置的设计 10
3.1 起膜装置在收膜过程中的作用 10
3.2 起膜铲的外形结构及参数计算 10
3.3 土壤对起膜铲铲面的作用力 14
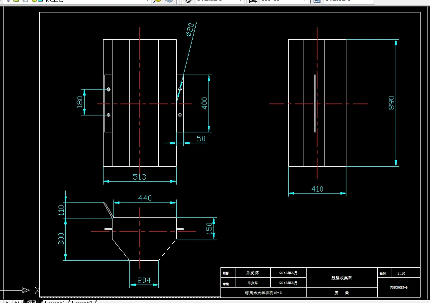
4 分区式残膜回收机收膜装置的设计 15
4.1 收膜装置的作用 15
4.2 残膜回收装置的整体设计 15
4.3 集膜箱的设计 18
5 牵引速度与收膜辊轴的校核 18
5.1 牵引速度对回收率的影响 18
5.2 收膜辊轴的校核 18
总 结 22
致 谢 23
参考文献 24
温馨提示:
1、题目前面的备注【字母数字编号】为本站整理分类的编号,与课题内容无关,请选题时忽视;
2、若题目上备注三维,则表示文件里包含三维源文件,由于三维组成零件数量较多,为保证预览截图的简洁性,本站将三维文件夹进行了打包。三维及CAD预览截图,均为本站电脑打开软件进行截图的,保证能够打开,下载原件超高清,下载后解压即可;
3、本站所有资源如无特殊说明,都需要本地电脑安装Office2007。图纸软件为AutoCAD,PROE,UG,SolidWorks,CATIA等;
4、本站所有图文资料仅供用户学习参考,不作为任何商用或其他用途;
5、本站不保证下载资源的准确性、安全性和完整性, 不包修改,不支持退换,同时也不承担用户因使用这些下载资源对自己和他人造成任何形式的伤害或损失;
6、 下载文件中如有侵权或不适当内容,请与我们联系,我们立即纠正。