

作品包括:
说明书一份,94页,约36000字
CAD版本图纸,共12张
摘 要
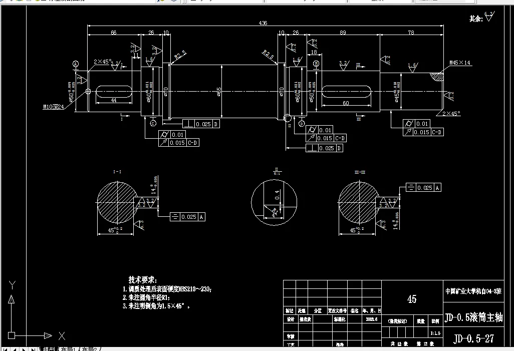
调度绞车是矿山生产系统中最常用的机电设备,主要用于煤矿井下和其他矿山在倾角度小于30度的巷道中拖运矿车及其它辅助搬运工作,也可用于回采工作面和掘进工作面装载站上调度编组矿车。
在设计过程中根据绞车牵引力选择电动的型号以及钢丝绳的直径,选择后验证速度是否与设计要求速度一致,根据要求设计绞车是通过两级行星轮系及所采用的浮动机构完成绞车的减速和传动,其两级行星齿轮传动分别在滚筒的两侧,从而根据设计要求确定行星减速器的结构和各个传动部件的尺寸,根据滚筒的结构形式选择制动装置为带式制动,并对各个设计零部件进行校核等等。绞车通过操纵工作闸和制动闸来实现绞车卷筒的正转和停转,从而实现对重物的牵引和停止两种工作状态。设计中绞车内部各转动部分均采用滚动轴承,运转灵活。
JD-0.5型调度绞车采用行星齿轮传动,绞车具有结构紧凑、刚性好、效率高、安装移动方便、起动平稳、操作灵活、制动可靠、噪音低以及隔爆性能、设计合理、操作方便,用途广泛等特点。
关键词:调度绞车; 带式制动;行星轮系
目 录
1 概述……………………………………………………………………………1
1.1调度绞车的简介…………………………………………………………1
1.2用途及适用范围…………………………………………………………2
1.3 本文所做的基本工作……………………………………………………2
2 调度绞车的总体设计…………………………………………………………3
2.1设计参数…………………………………………………………………3
2.2结构特征…………………………………………………………………3
2.3 选择电动机………………………………………………………………4
2.3.1电动机输出功率的计算………………………………………………4
2.3.2确定电动机的型号……………………………………………………4
3 滚筒及其部件的设计…………………………………………………………5
3.1钢丝绳的选择……………………………………………………………5
3.2滚筒的设计计算…………………………………………………………6
3.2.1 滚筒直径 ……………………………………………………………6
3.2.2 滚筒宽度 ……………………………………………………………7
3.2.3滚筒外径 ……………………………………………………………7
4 行星齿轮传动概论……………………………………………………………8
4.1行星齿轮传动的定义……………………………………………………8
4.2行星齿轮传动符号………………………………………………………9
4.3行星齿轮传动的特点……………………………………………………10
5 减速器设计…………………………………………………………………11
5.1总传动比及传动比分配…………………………………………………11
5.1.1总传动比………………………………………………………………11
5.1.2传动比分配……………………………………………………………12
5.2高速级计算………………………………………………………………13
5.2.1配齿计算………………………………………………………………13
5.2.2变位方式及变位系数的选择…………………………………………14
5.2.3 按接触强度初算A-C传动的中心距 和模数………………………15
5.2.4几何尺寸计算…………………………………………………………16
5.2.5 验算A-C传动的接触强度和弯曲强度………………………………19
5.2.6验算C-B传动大接触强度和弯曲强度………………………………25
5.3低速级计算………………………………………………………………26
5.3.1配齿计算………………………………………………………………26
5.3.2变位方式及变位系数的选择…………………………………………27
5.3.3 按接触强度初算A-C传动的中心距 和模数 ……………………27
5.3.4 几何尺寸计算………………………………………………………29
5.3.5验算A-C传动的接触强度和弯曲强度………………………………32
5.3.6验算C-B传动大接触强度和弯曲强度………………………………38
5.4传动装置运动参数的计算………………………………………………39
5.4.1各轴转速计算…………………………………………………………39
5.4.2各轴功率计算…………………………………………………………39
5.4.3各轴扭矩计算…………………………………………………………39
5.4.4各轴转速、功率、扭矩列表(见表5.1)…………………………40
6传动轴的设计计算……………………………………………………………40
6.1计算作用在齿轮上的力…………………………………………………40
6.2、初步估算轴的直径……………………………………………………41
6.3轴的结构设计……………………………………………………………41
6.3.1确定轴的结构方案……………………………………………………41
6.3.2确定各轴段直径和长度………………………………………………41
6.3.3确定轴承及齿轮作用力位置…………………………………………42
6.4绘制轴的弯矩图和扭矩图………………………………………………42
6.5轴的计算简图……………………………………………………………44
6.6按弯矩合成强度校核轴的强度…………………………………………44
7滚动轴承的选择与寿命计算…………………………………………………45
7.1基本概念及术语…………………………………………………………45
7.2轴承类型选择……………………………………………………………46
7.3按额定动载荷选择轴承…………………………………………………46
8键的选择与强度验算…………………………………………………………47
8.1电机轴与中心轮联接键的选择与验算…………………………………48
8.1.1键的选择………………………………………………………………48
8.1.2键的验算………………………………………………………………48
8.2 主轴(滚筒轴)与行星架联接键的选择与验算………………………49
8.2.1键的选择………………………………………………………………49
8.2.2 键的验算……………………………………………………………49
8.3 主轴与太阳轮联接键的选择与验算…………………………………49
8.3.1 键的选择……………………………………………………………49
8.3.2 键的验算……………………………………………………………49
8.4 行星架与滚筒联接键的选择与验算…………………………………50
8.4.1 键的选择……………………………………………………………50
8.4.2 键的验算……………………………………………………………50
9 制动器的设计计算…………………………………………………………51
9.1制动器的作用与要求……………………………………………………51
9.1.1 制动器的作用:………………………………………………………51
9.1.2 制动器的要求:………………………………………………………51
9.2 制动器的类型比较与选择……………………………………………51
9.2.1制动器的类型有:……………………………………………………51
9.2.2 制动器的选择………………………………………………………51
9.3 外抱带式制动器结构…………………………………………………52
9.4 外抱带式制动器的几何参数计算……………………………………52
10 结构设计……………………………………………………………………62
10.1 行星齿轮传动的均载机构……………………………………………62
10.1.1 均载机构的类型和特点……………………………………………62
10.1.2 行星轮间载荷分布不均匀性分析…………………………………63
10.1.3 行星轮间载荷分布均匀的措施……………………………………65
10.2 行星轮的结构及支承结构……………………………………………67
10.2.1 行星轮的结构………………………………………………………67
10.2.2 行星轮的支承结构…………………………………………………68
11 主要零件的技术要求………………………………………………………71
11.1 对齿轮的要求…………………………………………………………71
11.1.1 齿轮精度……………………………………………………………71
11.1.2 对行星轮制造方面的几点要求……………………………………71
11.1.3 齿轮材料和热处理要求……………………………………………71
12 绞车的安装及安装调试……………………………………………………72
12.1 绞车的安装……………………………………………………………72
12.2 绞车安装调试…………………………………………………………72
13 使用与操作…………………………………………………………………72
13.1 一般要求………………………………………………………………72
13.2 操作前注意事项………………………………………………………72
13.3 操作要求和操作方法…………………………………………………73
14 安全保护……………………………………………………………………74
15 维护与保养…………………………………………………………………74
16 可能发生的故障及消除方法………………………………………………76
17 绞车的润滑…………………………………………………………………76
小结……………………………………………………………………………78
参考文献………………………………………………………………………79
附录……………………………………………………………………………80
翻译部分
英文原文……………………………………………………………………82
中文译文……………………………………………………………………89
致谢……………………………………………………………………………93
温馨提示:
1、题目前面的备注【字母数字编号】为本站整理分类的编号,与课题内容无关,请选题时忽视;
2、若题目上备注三维,则表示文件里包含三维源文件,由于三维组成零件数量较多,为保证预览截图的简洁性,本站将三维文件夹进行了打包。三维及CAD预览截图,均为本站电脑打开软件进行截图的,保证能够打开,下载原件超高清,下载后解压即可;
3、本站所有资源如无特殊说明,都需要本地电脑安装Office2007。图纸软件为AutoCAD,PROE,UG,SolidWorks,CATIA等;
4、本站所有图文资料仅供用户学习参考,不作为任何商用或其他用途;
5、本站不保证下载资源的准确性、安全性和完整性, 不包修改,不支持退换,同时也不承担用户因使用这些下载资源对自己和他人造成任何形式的伤害或损失;
6、 下载文件中如有侵权或不适当内容,请与我们联系,我们立即纠正。