

作品包括:
说明书一份,共65页,约26000字
CAD版本图纸,共5张
涡轮钻具支承节的设计
中文摘要
【摘要】涡轮钻具是定向井,丛式井和水平井技术中高效快速钻井的理想钻井工具,是当今井下动力钻具主体之一。不断改进涡轮钻具的结构,提高其技术的性能对促进石油工业的发展具有十分重要的意义。
本文介绍了涡轮钻具技术的发展状况以及涡轮钻具简要的概述,并阐明了其发展的方向,重点叙述了涡轮钻具支承节的结构特点,整体结构设计及其主要零部件的设计和计算.运用了类比的设计方法,设计了符合钻井使用条件的浮动定子175涡轮钻具支承节,包括了主轴与花键轴的设计,轴承的设计和结构设计,以及各个零件之间的装配关系,并进行了强度校核,用AutoCAD绘制了主要的零件图和装配图。最后,运用PRO/E软件对主要零部件进行实体造型设计。
【关键词】涡轮钻具;实体造型;支承节 ;PRO/E;
目 录
任务书 Ⅰ
开题报告 Ⅱ
指导教师审查意见 Ⅲ
评阅教师评语 Ⅳ
答辩会议记录 Ⅴ
中文摘要 Ⅵ
英文摘要 Ⅶ
前言 1
1 选题背景 2
1.1 题目来源 2
1.2研究的目的和意义 2
2 涡轮钻井技术的新发展 4
2.1 低速大扭矩涡轮钻具的突出发展 4
2.2带浮动定子的涡轮钻具 5
2.3带支承节的涡轮钻具 6
2.4 涡轮钻具配合金刚石钻头钻井技术 6
2.5涡轮钻具和涡轮钻井技术的发展趋势 8
3 国内外发展概况及存在的问题 9
3.1涡轮钻具的现状 9
3.2研究的主攻方向 9
4 涡轮钻具的概述 11
4.1涡轮钻具的结构 11
4.2涡轮钻具的零件 11
4.3涡轮钻具的分类 11
4.4 涡轮钻具的优缺点 13
4.5 提高涡轮钻具寿命的方法 13
5 方案论证及选择 15
5.1 独立支承节与非独立支承节涡轮钻具 15
5.2 独立悬挂与非独立悬挂方案对比 16
5.3轴承的对比 16
5.4 支承节润滑形式的对比 17
5.5支承节结构设计方案的选择 17
6 主要零件的设计计算 18
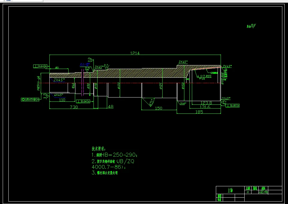
6.1 主轴的设计 18
6.2 壳体的设计 18
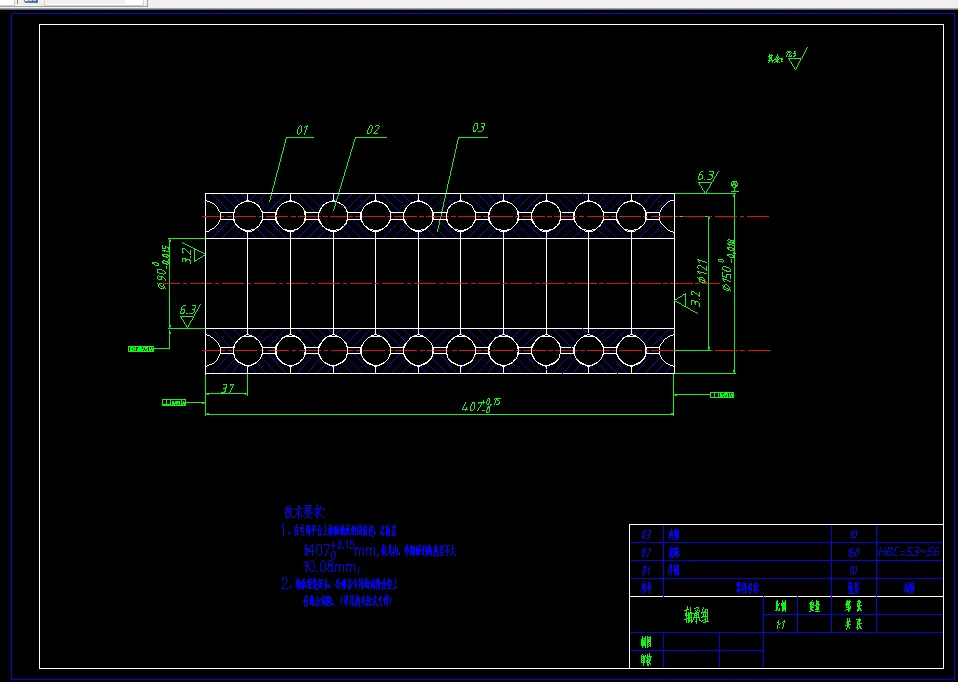
6.3 轴承部分的设计 21
6.4 花键轴及花键尺寸设计 26
6.5 其他零件设计及结构设计 27
7 主要零件强度校核 31
7.1系统预紧力计算 31
7.2 壳体的强度校核 33
7.3 主轴的强度校核 35
7.4 花键轴的强度校核 37
7.5 滚动轴承组寿命的校核 38
8. Pro-E实体造型设计 42
8. 1 Pro-E软件简介 42
8. 2 主要零件实体造型 43
9 论文总结 51
参考文献 52
致 谢 54
温馨提示:
1、题目前面的备注【字母数字编号】为本站整理分类的编号,与课题内容无关,请选题时忽视;
2、若题目上备注三维,则表示文件里包含三维源文件,由于三维组成零件数量较多,为保证预览截图的简洁性,本站将三维文件夹进行了打包。三维及CAD预览截图,均为本站电脑打开软件进行截图的,保证能够打开,下载原件超高清,下载后解压即可;
3、本站所有资源如无特殊说明,都需要本地电脑安装Office2007。图纸软件为AutoCAD,PROE,UG,SolidWorks,CATIA等;
4、本站所有图文资料仅供用户学习参考,不作为任何商用或其他用途;
5、本站不保证下载资源的准确性、安全性和完整性, 不包修改,不支持退换,同时也不承担用户因使用这些下载资源对自己和他人造成任何形式的伤害或损失;
6、 下载文件中如有侵权或不适当内容,请与我们联系,我们立即纠正。