

作品包括:
说明书一份,共37页,约13000字
CAD版本图纸,共9张
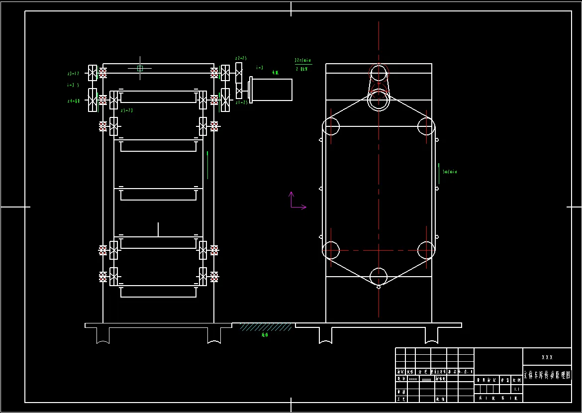
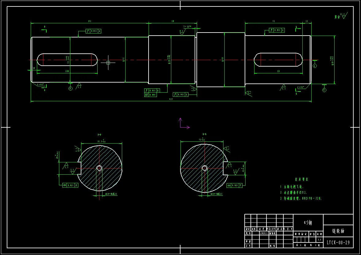
本设计总结了垂直循环机械式停车设备的原理,设计了中型链传动式立体车库。通过对社会上立体车库现状及停车状况的的实践和调查,对该立体车库的总体方案进行了设计,其中包括传动原理和传动装置的设计,以及总体钢架和吊箱的设计,并对相邻吊箱的干涉问题进行计算分析。根据其传动特点,通过计算选出电动机,对基本的传动数据进行了计算,并对传动比进行了合理分配。对重要的传动部件链条进行了计算选型,对大、小链轮进行了详细的设计计算,同时,对轴也进行了设计计算。最后对各重要部件进行了校核。
关键词 立体车库 链传动 钢结构骨架 垂直循环机构
目 录
1 绪论 1
1.1自行车停车不便的原因及其影响........................................ 1
1.2机械式立体车库的类型................................................ 1
1.3机械式立体车库的优势与前景.......................................... 2
2 设计方案的确定 3
2.1 整体布局的构造......................................................3
2.2 根据条件进行初步确定参数...........................................4
3 设计计算 5
3.1 传动装置的总体设计 5
3.2 传动件的设计计算 10
4 轴、键、轴承的设计选择 17
4.1 轴的设计及强度校核 17
4.2 键的选择及强度校核 25
4.3 轴承的寿命计算 27
5 其它零部件的选择及强度校核 30
5.1 螺栓联接的选择及螺栓的强度校核 30
5.2 槽钢的强度校核 32
6 立体车库装配、维护过程中的注意事项 32
6.1 滚动轴承的润滑、预紧和密封 32
6.2 钢结构骨架的装配及运输 34
结论 35
致 谢 36
参 考 文 献 37
温馨提示:
1、题目前面的备注【字母数字编号】为本站整理分类的编号,与课题内容无关,请选题时忽视;
2、若题目上备注三维,则表示文件里包含三维源文件,由于三维组成零件数量较多,为保证预览截图的简洁性,本站将三维文件夹进行了打包。三维及CAD预览截图,均为本站电脑打开软件进行截图的,保证能够打开,下载原件超高清,下载后解压即可;
3、本站所有资源如无特殊说明,都需要本地电脑安装Office2007。图纸软件为AutoCAD,PROE,UG,SolidWorks,CATIA等;
4、本站所有图文资料仅供用户学习参考,不作为任何商用或其他用途;
5、本站不保证下载资源的准确性、安全性和完整性, 不包修改,不支持退换,同时也不承担用户因使用这些下载资源对自己和他人造成任何形式的伤害或损失;
6、 下载文件中如有侵权或不适当内容,请与我们联系,我们立即纠正。