

作品包括:
Word版说明书1份,共28页,约12000字
CAD版本图纸,共2张
摘 要
矿井提升机是矿山最重要的设备,肩负着矿石、物料、人员等的运输责任。传统的矿井提升机控制系统主要采用继电器-接触器进行控制,这类提升机通常在电动机转子回路中串接附加电阻进行启动和调速。这种控制系统存在可靠性差、操作复杂、故障率高、电能浪费大、效率低等缺点。针对这种情况采用PLC与变频器相结合的控制方案对原有电控系统进行改造,提高整个电控系统安全可靠性、控制精度及调速性能。因此,对矿井提升机控制系统进行研究具有现实意义,也是国内外相关行业专家学者的一个研究课题。
本文针对提升机控制系统中存在的上述问题,把可编程序控制器和变频器应用于提升机控制系统上,并在可行性方面进行了相关的研究。事实表明 ,采用该控制系统,使提升机工作可靠,使用方便,同时具有动态显示的功能,节能效果明显。
关键词:可编程控制器,提升机,变频器,控制系统
目 录
摘 要 I
Abstract II
第一章 绪论 1
1.1 矿井提升机简介 1
1.2 矿井提升机的任务及其组成 1
1.3 矿井提升机的特点 1
1.4 矿井提升机的工作原理 2
1.5 国内外提升机研究状况 2
1.6 本章小结 3
第二章 控制方案要求 4
2.1 该系统能够实现的功能 4
2.2 提升机运行曲线 4
2.3 提升机速度要求及计算 5
2.4 控制方案论证与选择 6
2.5 本章小结 10
第三章 提升机控制系统的硬件设计 11
3.1 PLC控制系统结构组成 11
3.2 PLC的选型 11
3.3 PLC控制的优点 11
3.4 旋转编码器及其接线方式 12
3.4 PLCI/0的分配 13
3.5 变频器设计部分 14
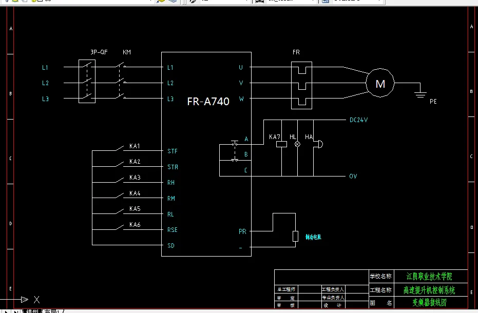
3.6 系统电气控制接线图设计 14
3.7 本章小结 14
第四章 系统软件设计 16
4.1 PLC的程序设计环境 16
4.2 系统程序设计 17
4.3 PLC控制系统软件程序的编写 19
5.4 本章小结 19
结论 20
致 谢 21
参考资料 22
附录一 23
温馨提示:
1、题目前面的备注【字母数字编号】为本站整理分类的编号,与课题内容无关,请选题时忽视;
2、若题目上备注三维,则表示文件里包含三维源文件,由于三维组成零件数量较多,为保证预览截图的简洁性,本站将三维文件夹进行了打包。三维及CAD预览截图,均为本站电脑打开软件进行截图的,保证能够打开,下载原件超高清,下载后解压即可;
3、本站所有资源如无特殊说明,都需要本地电脑安装Office2007。图纸软件为AutoCAD,PROE,UG,SolidWorks,CATIA等;
4、本站所有图文资料仅供用户学习参考,不作为任何商用或其他用途;
5、本站不保证下载资源的准确性、安全性和完整性, 不包修改,不支持退换,同时也不承担用户因使用这些下载资源对自己和他人造成任何形式的伤害或损失;
6、 下载文件中如有侵权或不适当内容,请与我们联系,我们立即纠正。