

作品包括:
Word版说明书1份,共42页,约17000字
CAD版本图纸,共1张
西门子PLC程序一份
摘 要
在我国水资源极度匮乏,相对于偌大的国土面积,我国的水资源是十分稀少的,由于我过淡水资源空间上分布不均匀,很多地区和城市都面临淡水资源缺乏的现象,我国实施运行的西部开发战略就有水资源的西部引入东部的举措,实现空间淡水资源的合理分配。但是随着科技的发展和我过经济总量的提升,大面积的污染因素直接或者间接的污染了我们平时的淡水资源,一些河流、湖泊大面积的污染,导致我们的饮用淡水资源造成了巨大的减少,严重影响了我们赖以生存的水资源。目前大多数城市都已经建成污水处理装置,用于对污染水、废水的二次利用。本次设计就是针对这一现象,对一种工业污水处理的系统进行设计。
本次设计采用西门子S7-200小型PLC作为主要的控制元件,通过置位复位和起保停电路、顺序控制的方式对程序进行编程,设计了一种工业污水处理的PLC控制系统。通过对硬件和软件的设计,满足现今控制行业污水处理的使用要求。最后对程序进行模拟调试,在不断的调试和修改过程中,使程序更加完美,达到最佳的工作状态。
关键词:工业污水处理控制系统 可编程序逻辑控制器 水质净化系统
目录
摘 要
Abstract
1绪论 1
1.1课题研究的背景和现状分析 1
1.2水处理工艺简述 1
1.3本次设计的内容及目的 2
1.3.1本次设计的内容 2
1.3.2本次设计的目的 2
1.4系统控制的选择比较 3
1.5 PLC定义及简述 4
1.6 PLC的基本结构组成 4
1.7 PLC的发展趋势分析 6
2控制系统硬件的设计 7
2.1 工业污水处理控制系统控制的要求 7
2.2工业污水处理控制的系统组成 8
2.3 硬件选型 8
2.3.1 PLC选型 8
2.3.2罗茨风机 11
2.3.3水位检测传感器的选型 11
2.3.4滗水器选型 12
2.4本次系统设计的主要硬件清单 12
3 工业污水处理控制系统PLC程序的编写 13
3.1工业污水处理的控制简述 13
3.2绘制控制流程图 13
3.3 配置I/O表 14
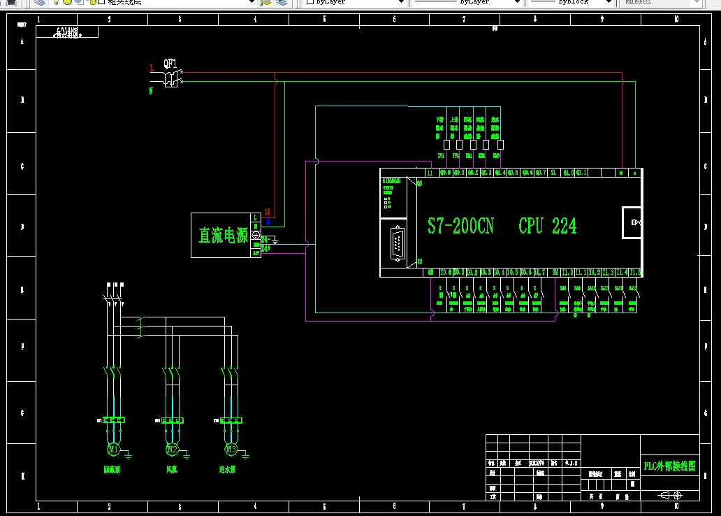
3.4 接线图 15
3.5程序编写 16
3.5.1梯形图绘制 16
3.5.2语句表 21
4 程序仿真 25
4.1环境要求 25
4.2程序调式 25
致 谢 27
参考文献 28
温馨提示:
1、题目前面的备注【字母数字编号】为本站整理分类的编号,与课题内容无关,请选题时忽视;
2、若题目上备注三维,则表示文件里包含三维源文件,由于三维组成零件数量较多,为保证预览截图的简洁性,本站将三维文件夹进行了打包。三维及CAD预览截图,均为本站电脑打开软件进行截图的,保证能够打开,下载原件超高清,下载后解压即可;
3、本站所有资源如无特殊说明,都需要本地电脑安装Office2007。图纸软件为AutoCAD,PROE,UG,SolidWorks,CATIA等;
4、本站所有图文资料仅供用户学习参考,不作为任何商用或其他用途;
5、本站不保证下载资源的准确性、安全性和完整性, 不包修改,不支持退换,同时也不承担用户因使用这些下载资源对自己和他人造成任何形式的伤害或损失;
6、 下载文件中如有侵权或不适当内容,请与我们联系,我们立即纠正。