

作品包括:
Word版说明书1份,共71页,约15000字
外文翻译一份
CAD版本图纸,共10张
CREO三维图一套

摘要
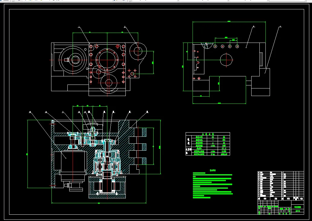
我国煤炭储量巨大,而薄煤层又占据了储量的很大一部分,所以说薄煤层开采是构成我国煤炭产量不可或缺的一部分。滚筒采煤机是煤矿井下综采工作面上应用最广泛的采掘机械,其性能的好坏将直接关系到井下人员的生命安全以及煤炭的产量。牵引部是电牵引采煤机的重要组成部分,是采煤机的关键部件和易损件,牵引系统的可靠性决定着采煤机的质量和使用效果。随着煤炭开采效率的提高,采煤机牵引速度和牵引力不断提高,电动机负载也在加重。为了使采煤机牵引系统既能满足牵引速度要求,又能保证电机的安全和关键零件的可靠性。本文以mg400一920wd采煤机牵引部作为设计研究的主体,分析了采煤机械的发展背景以及发展现状,对牵引部的基本传动体系进行了设计分析,并通过proe软件建立了牵引部的三维立体模型。
关键字:采煤机、牵引部、滚筒
目 录
摘要 - 2 -
Abstract - 3 -
第一章 绪论 - 6 -
1.1 课题研究背景 - 6 -
1.2采煤机的研究现状 - 7 -
1.2.1 国外研究现状 - 7 -
1.2.2 国内研究现状 - 8 -
1.3 采煤机牵引部 - 9 -
第二章 提升机的整体设计分析 - 12 -
2.1主要技术参数 - 12 -
2.2牵引部传动方案图 - 12 -
2.3电动机结构部件的选择 - 13 -
2.4传动比参数的分配 - 13 -
2.5.牵引部传动计算 - 15 -
第三章 齿轮传动的设计分析 - 17 -
3.1第一对啮合齿轮设计 - 17 -
3.2第二对啮合齿轮的设计 - 22 -
3.3第三对啮合齿轮的设计 - 28 -
第四章 行星齿轮的设计求解 - 35 -
4.1配齿参数求解 - 35 -
4.2行星齿轮的求解 - 36 -
4.2.1齿轮材料热处理工艺及制造工艺的选定 - 37 -
4.2.2齿轮材料热处理工艺及制造工艺的选定 - 40 -
4.2.3确定各主要参数 - 41 -
4.3行星齿轮的啮合要素验算 - 48 -
第五章 各零件的设计及校核 - 52 -
5.1轴结构部件的最小直径 - 52 -
5.2键的选择和校核 - 57 -
5.3轴承结构部件的校核 - 59 -
第六章 采煤机牵引部模型建立 - 61 -
6.1PROE软件介绍 - 61 -
6.1.1 PROE背景 - 61 -
6.1.2 PROE软件建模途径 - 63 -
6.2 采煤机牵引部的三维模型的建立 - 64 -
6.2.1 机头结构部件 - 64 -
6.2.2 筒体结构部件 - 64 -
6.2.3底座结构部件 - 64 -
6.2.5 整机模型 - 65 -
结 论 - 66 -
致 谢 - 67 -
参考文献 - 68 -
温馨提示:
1、题目前面的备注【字母数字编号】为本站整理分类的编号,与课题内容无关,请选题时忽视;
2、若题目上备注三维,则表示文件里包含三维源文件,由于三维组成零件数量较多,为保证预览截图的简洁性,本站将三维文件夹进行了打包。三维及CAD预览截图,均为本站电脑打开软件进行截图的,保证能够打开,下载原件超高清,下载后解压即可;
3、本站所有资源如无特殊说明,都需要本地电脑安装Office2007。图纸软件为AutoCAD,PROE,UG,SolidWorks,CATIA等;
4、本站所有图文资料仅供用户学习参考,不作为任何商用或其他用途;
5、本站不保证下载资源的准确性、安全性和完整性, 不包修改,不支持退换,同时也不承担用户因使用这些下载资源对自己和他人造成任何形式的伤害或损失;
6、 下载文件中如有侵权或不适当内容,请与我们联系,我们立即纠正。