

作品包括:
Word版说明书1份,共41页,约17000字
CAD版本图纸,共7张
SW三维图一套

摘 要
在铁路高速、重载的发展形势下,即提高铁路的运输能力,实现铁路运输的现代化,又保证铁路的运输生产安全,显得尤为重要,如果没有性能良好的车轴作为保证,要提高车辆的运行速度和运行安全是不可能的。车轴尺寸检测对检修车轴中处于关键地位,是保证车轴质量的重要手段,传统的检测方法是以人工操作为主,数据的判断读取存在较大的人为误差,所以影响了检测结果的准确性、真实性,也直接影响了车辆的行车安全。所以急需对现有的检测方式进行微机化、自动化改造,以消除测试过程中人为因素对测量结果的影响,用先进的设备保证车辆的行车安全,所以本设计研制一种火车车轴尺寸检测系统机构测量机来解决这个问题。
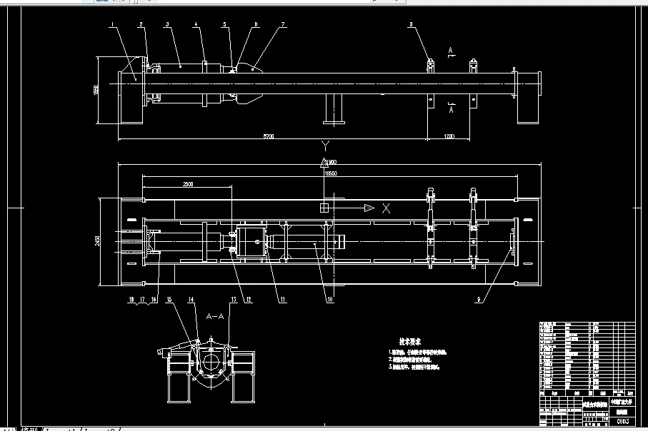
本设计研究的车轴尺寸检测机构是一套现代化的智能检测系统,能满足火车车轴各个尺寸的检测,火车车轴尺寸测量机构主要是由侧翻机构、夹紧机构、旋转驱动、测量机构等组成,火车轴尺寸测量机改变传统人工测量的方式,实现车轴尺寸检测,避免人为测量中的误判及波动,以及误检、错检等弊端。
关键词:旋转机构;侧翻机构;顶尖
目 录
1 绪论 1
1.1问题的提出 1
1.2 课题研究的目的与意义 2
1.3国内外现状分析 3
1.3.1国内现状分析 3
1.3.2国外现状分析 3
1.4发展趋势 4
2 火车车轴尺寸检测机构系统的方案设计 4
2.1概述 4
2.2主体设计 5
2.3火车车轴尺寸检测系统的设计方案 5
3 火车车轴尺寸检测机构液动系统设计 7
3.1液压部分设计与计算 7
3.1.1液压缸的设计计算与选取 8
3.1.2液压缸的缸筒的设计与计算 8
3.1.3活塞杆的设计与计算 9
3.1.4最小导向长度H的确定 11
4 火车车轴尺寸检测机构机械系统设计 13
4.1电机的选型设计 13
4.2顶尖心轴的设计 21
4.2.1顶尖的计算 21
4.2.2轴承的寿命计算 21
4.2.3轴承的静强度计算 23
4.2.4顶尖心轴的设计与计算 24
4.3翻转机构的设计与强度校核 25
4.4滚珠丝杠及电机选型计算 27
4.4.1确定滚珠丝杠副的导程 27
4.4.2滚珠丝杠副的载荷及转速计算 28
4.4.3滚珠丝杠副预期额定动载荷 28
4.4.4导程精度的选择 29
4.4.5丝杠电机的选择 29
5 检测部分 31
5.1激光位移传感器的简介 31
5.2激光位移传感器的工作原理 32
5.3上下滑架的设计 33
毕业设计总结 35
参考文献 36
谢 辞 37
温馨提示:
1、题目前面的备注【字母数字编号】为本站整理分类的编号,与课题内容无关,请选题时忽视;
2、若题目上备注三维,则表示文件里包含三维源文件,由于三维组成零件数量较多,为保证预览截图的简洁性,本站将三维文件夹进行了打包。三维及CAD预览截图,均为本站电脑打开软件进行截图的,保证能够打开,下载原件超高清,下载后解压即可;
3、本站所有资源如无特殊说明,都需要本地电脑安装Office2007。图纸软件为AutoCAD,PROE,UG,SolidWorks,CATIA等;
4、本站所有图文资料仅供用户学习参考,不作为任何商用或其他用途;
5、本站不保证下载资源的准确性、安全性和完整性, 不包修改,不支持退换,同时也不承担用户因使用这些下载资源对自己和他人造成任何形式的伤害或损失;
6、 下载文件中如有侵权或不适当内容,请与我们联系,我们立即纠正。